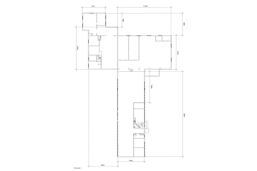
På denna inhägnande fastighet står två byggnader uppförda. Möjlighet finns att endast hyra den ena. Byggnaden är 750 m2 och perfekt för produktion, lager, lättindustri och kontor.
Lokalen består i dag av tillverkningsytor, kontor, omklädningsrum, personalrum samt smörjgrop avsedd för tunga fordon. Byggnaden har 2 markportar (höjd 3.10 m). Denna del av fastigheten kan göras om eller delvis användas som exempelvis butik då skyltfönster/kundentre enkelt kan tas upp.
Uppvärmning: Bergvärme
Del av uppställningsyta.
Omgående tillträde eller enligt önskemål.
NYKÖPING
Nyköping är en strategisk plats för företagsetablering med sitt utmärkta läge vid E4:an, bara en timme från Stockholm, och närhet till Stockholm Skavsta flygplats. Här får du tillgång till en växande marknad, samtidigt som kostnaderna för lokaler och personal är betydligt lägre än i storstäderna. Kommunen erbjuder stöd och rådgivning för att underlätta etableringen, och staden har gott om tillgänglig mark för expansion. I Nyköping kombineras småstadens charm och trygghet med närhet till naturen, vilket gör det enkelt att attrahera och behålla kvalificerad arbetskraft. Dessutom är staden en del av den expanderande Sörmlandsregionen, som satsar på hållbarhet och innovation. Här finns ett blomstrande näringsliv med företag inom allt från tillverkningsindustri och logistik till tjänstesektorn och kreativa näringar, vilket skapar unika möjligheter till samarbeten och utveckling. Med sin höga livskvalitet, goda infrastruktur och starka framtidstro är Nyköping en plats där företag kan växa och trivas.
<b>VISNING/KONTAKT - JOANNA</b>
Vänligen respektera säljarens / hyresvärdens önskemål om bokad visning.
För mer information eller visning av objektet, hör av er till Locus Advice genom kontaktformuläret eller ring Joanna Eriksson på tel 08-558 094 43, Fredrik Lundberg 08-558 094 44
Växeln är öppen helgfria vardagar mellan 08.30-17.00
Locus Advice tel 08-558 094 40
<b>LOCUS ADVICE </b>
Locus Advice är ett fastighetskonsultbolag med fokus på kommersiella fastigheter och lokaler.
Vi arbetar med
Genom etablerade samarbeten med både stora och små fastighetsägare har vi tillgång till ett stort utbud av lokaler utöver vad vi kan marknadsföra i vår egen regi. Via dessa samarbeten kan vi med stor sannolikhet hjälpa er hitta den lokal ni söker efter.