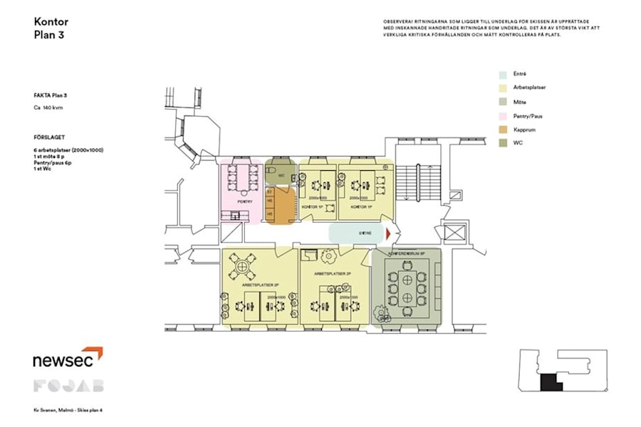
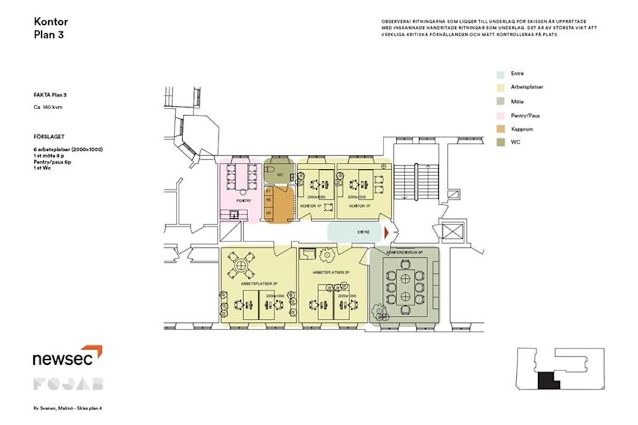
Nu har vi nöjet att kunna erbjuda en av de populära små lokalerna i den vackra sekelskiftesfastigheten Svanen. Endast ett stenkast från Malmö C, på Göran Olsgatan, finns en ledig kontorslokal på 136 kvm. Kontoret ligger på andra våningen i en vacker sekelskiftesfastighet som naturligtvis är uppdaterat med all tänkbar modern teknik.
Lokalen är rumsindelad. Det finns totalt 5 rum varav 3 av dessa är stora och generösa - klassiska sekelskiftesrum.
På den idylliska innergården som är låst för obehöriga kan du tryggt parkera din cykel. Eller varför inte avnjuta eftermiddagskaffet där eller anordna AW för personalen med lite grillning.
I huset finns ett fantastisk café, lunchrestaurang och en blomsterbutik - allt precis utanför entrén.
Ett bättre kommunikationsläge än detta är svårt att hitta.
Välkommen att kontakta mig för mer information och visning.
Bekvämligheter
Det centrala läget gör att man har all tänkbar service i närheten. Här finns ett stort utbud av lunchrestauranger precis utanför porten. Självklart finns här också bank, frisörer, shopping och gym i närheten.
Kommunikationer
Malmö Centralstation ligger endast ett par minuters promenad från denna vackra sekeskiftesfastighet. För den bilburne finns det parkeringshus i området.