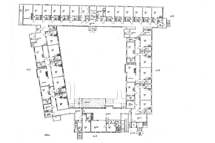
I Getinge finns det nu möjlighet att hyra ca 2700 kvm vårdlokal.
Invändigt består ytan av allt som kan tänkas nödvändigt för att bedriva vårdverksamhet. Här finns bland annat reception, kök, matsal, personalytor, ytor för terapi och sjukgymnastik samt korridorer med flertalet rum med tillhörande toalett och handfat. Utvändigt finns en stor trädgård och parkeringsyta.
Omgivning
Omgivning/natur: Byggnaden är placerad precis intill Getinge kyrka och dess vackra omgivning.
Närservice: Bland andra Getinge restaurang & pizzeria, Getinge Vårdcentral, Cirkle K och restaurang Matoklaven.
Skyltläge: Skyltläge mot Göteborgsvägen i Getinge.