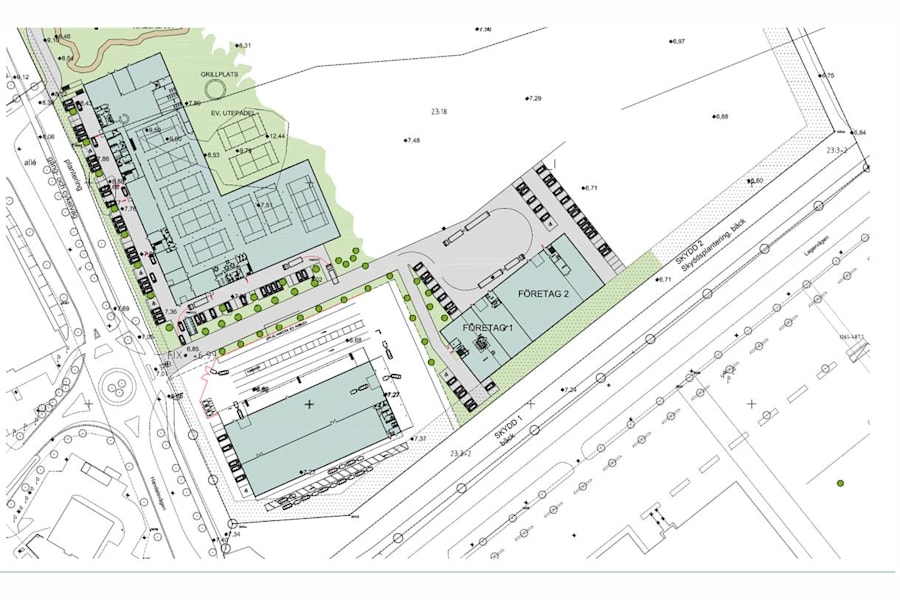
Etablera er verksamhet på ett utmärkt exponerat logistikläge. Lokalen anpassas efter verksamhetens behov. Aktuell lokal står som "FÖRETAG 2" på bilden.
Ytor/Planlösning
Se planritning.
Övrig information
Croisette Real Estate Partner har erhållit förmedlingsuppdrag avseende lokalen som beskrivs i detta informationshäfte. Informationen är till största del inhämtad från Fastighetsägaren och eller Hyresgästen. Croisette AB och dess dotterbolag (”Croisette”) ansvarar inte för riktigheten i informationen. All information som är av relevans skall kontrolleras av en eventuell hyresgäst och varken Fastighetsägaren, Hyresgästen eller Croisette kan hållas ansvarig vid felaktigheter i detta informationshäfte.
Ekonomi
Tillträde: Efter överenskommelse
Omgivning
Företag i närheten: Byggmax, MAX, Padel, Lager157, Dollarstore, Center Syd mfl