Välkommen till en kontorslokal utöver det vanliga – en plats där historia möter modern funktionalitet i en miljö som inspirerar. Denna nyrenoverade lokal om totalt 2995 kvm, fördelat i två plan, i vackra <strong>Pagoden</strong> erbjuder ett stilfullt och modernt kontor med exklusiva materialval och en genomtänkt planlösning.
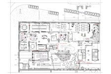
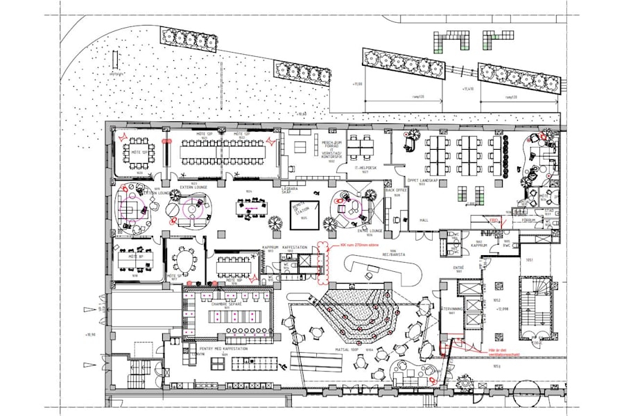
<strong>Markplan – mötesplats och pulserande hjärta:</strong>
Det nedre planet om ca 1000 kvm bjuder in med en representativ reception och en imponerande matplats, belägen i en <strong>ljusgård med 12 meters takhöjd</strong> som skapar en mäktig rymd genom hela byggnaden. Här finns även flera mötes- och konferensrum för både interna och externa möten, vilket gör detta plan till en naturlig samlingspunkt.
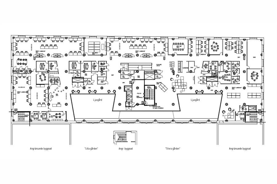
<strong>Övre plan – effektivitet och interaktion:</strong>
En trappa upp öppnar sig generösa ytor om 2000 kvm med <strong>öppna kontorslandskap</strong>, fler konferens- och mötesrum, samt inbjudande <strong>loungeytor</strong> för kreativt arbete, spontana samtal eller en paus i vardagen. Från detta plan har du dessutom utsikt ner i ljusgården – en ständig påminnelse om lokalens unika karaktär.
<strong>Kapacitet och funktioner:</strong>
Upp till <strong>230 arbetsplatser</strong>
<strong>32 mötesrum</strong> i varierande storlekar
<strong>11 WC</strong>
Stora, flexibla <strong>sociala ytor</strong> för event, personalmöten och mingel
<strong>Takhöjd om 4–5 meter</strong> även på övre plan
<strong>Möjlighet att dela lokalen
</strong>Lokalen kan delas upp i två, där ni har möjlighet att hyra in er på halva ytan, om 2995 kvm blir för stort. Då kan lokalen delas upp på två hyresgäster, där det nedre planet delas med en annan hyresgäst och det övre planet delas upp om 1000 kvm var.
En lokal som måste <strong>upplevas på plats</strong> för att förstås. Missa inte chansen att etablera ert företag i ett av Göteborgs mest unika kontor.
Välkommen till oss på Croisette för ytterligare information och bokning av visning!
Omgivning
Företag i närheten: Restaurang Pagoden, Monopolet, Holship Sverige AB, We Are More, Elos Medtech AB, Specsavers Sweden AB, m.fl.
Parkeringsmöjligheter/garage: Området erbjuder goda parkeringsmöjligheter, cykelgarage med omklädningsrum och dusch.
Närservice: På Gullbergs Strandgata 15 finns allt som behövs för en smidig och trivsam arbetsdag. I huset finns två restauranger och i området finns även gym, padelbana och ett utegym – perfekt för både lunchpausen och friskvården. Den grönskande gården bjuder dessutom in till arbete utomhus när vädret tillåter.