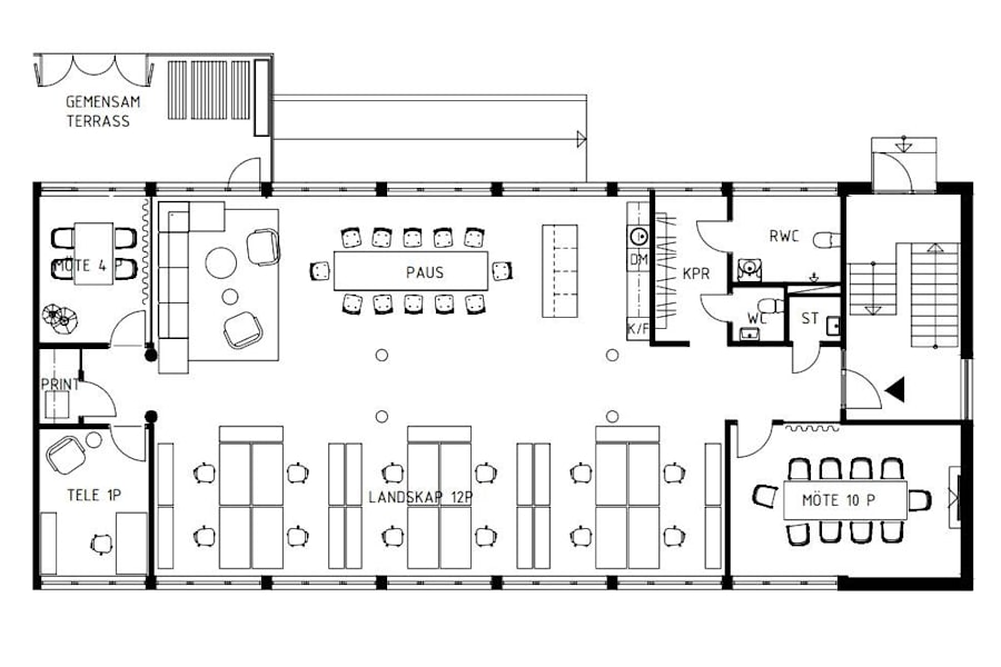
Denna rymliga lokal erbjuder ett öppet och ljust plan med stora fönster som ger ett härligt ljusinsläpp. Läget på bottenplan gör lokalen lättillgänglig och perfekt för verksamheter som vill ha en representativ entré.
Som extra fördel får lokalen en terrass – idealisk för pauser, informella möten eller kundevent utomhus. Lokalen har en flexibel planlösning och kan enkelt delas av till två separata enheter, vilket gör den anpassningsbar för olika behov.
Här finns alla möjligheter att skapa en modern arbetsmiljö med framtida mötesrum, pentry och pausytor. Närheten till kommunikationer och service gör läget extra attraktivt.
Övrig information
Croisette Real Estate Partner har erhållit förmedlingsuppdrag avseende lokalen som beskrivs i detta informationshäfte. Informationen är till största del inhämtad från Fastighetsägaren och eller Hyresgästen. Croisette AB och dess dotterbolag (”Croisette”) ansvarar inte för riktigheten i informationen. All information som är av relevans skall kontrolleras av en eventuell hyresgäst och varken Fastighetsägaren, Hyresgästen eller Croisette kan hållas ansvarig vid felaktigheter i detta informationshäfte.
Ekonomi
Tillträde: Enligt överenskommelse
Hyresinformation: Kontakta annonsören
Omgivning
Omgivning/natur: Lokalen ligger centralt på Hisingen, nära Backaplan och Kvillebäcken. Här finns goda kommunikationer, närhet till grönområden som Hisingsparken och flera lunchrestauranger samt träningsanläggningar.
Företag i närheten: Palmung Mellin Fastigheter, Nordic Wellness, Hornbach, mfl.
Parkeringsmöjligheter/garage: Stor parkering med elbilsladdare.