Nu erbjuds en ljus och välplanerad kontorslokal om 360 kvm, belägen på våning 5 med fin utsikt över Gustav Adolfs torg, mitt i centrala Helsingborg. Här skapas en effektiv och trivsam arbetsmiljö med stadens puls precis utanför dörren.
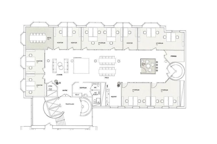
Lokalen har en genomtänkt planlösning som kombinerar enskilda kontor med öppna ytor för samarbete. De stora fönsterpartierna ger ett generöst ljusinsläpp och bidrar till en inspirerande arbetsplats.
Lokalen erbjuder:
Fem separata kontor för koncentrerat och ostört arbete
Öppet kontorslandskap som främjar samarbete och flexibilitet
Rymligt konferensrum för möten, workshops och presentationer
Fullt utrustat kök för gemensamma pauser och luncher
Toalett och badrum för extra komfort
Tyst rum för fokus, samtal eller återhämtning
Det centrala läget innebär närhet till restauranger, butiker och utmärkta kommunikationer, vilket gör vardagen både smidig och attraktiv för medarbetare och besökare.
En idealisk lokal för det moderna kontoret som söker funktion, ljus och ett förstklassigt läge.
Välkommen att kontakta oss för mer information eller för att boka en visning!
Våningsplan: 5 av 5
Omgivning
Parkeringsmöjligheter/garage: Parkering finns tillgänglig en kort promenad bort från kontoret, med timtaxa samt ett parkeringshus i närheten
Närservice: Kontorslokalen är omgiven av flera restauranger och charmiga bagerier, såsom Rosegarden och Bageri Caféet, samt det lockande Icha Mochi. Dessutom har du bekvämt nära tillgång till förtjusande shoppingbutiker.
Skyltläge: Bra