Nu finns möjlighet att hyra en funktionell lokal i Brunna – perfekt för verksamheter inom livsmedel, produktion eller logistik. Fastigheten är livsmedelsklassad, vilket ger goda förutsättningar för verksamheter som så kräver.
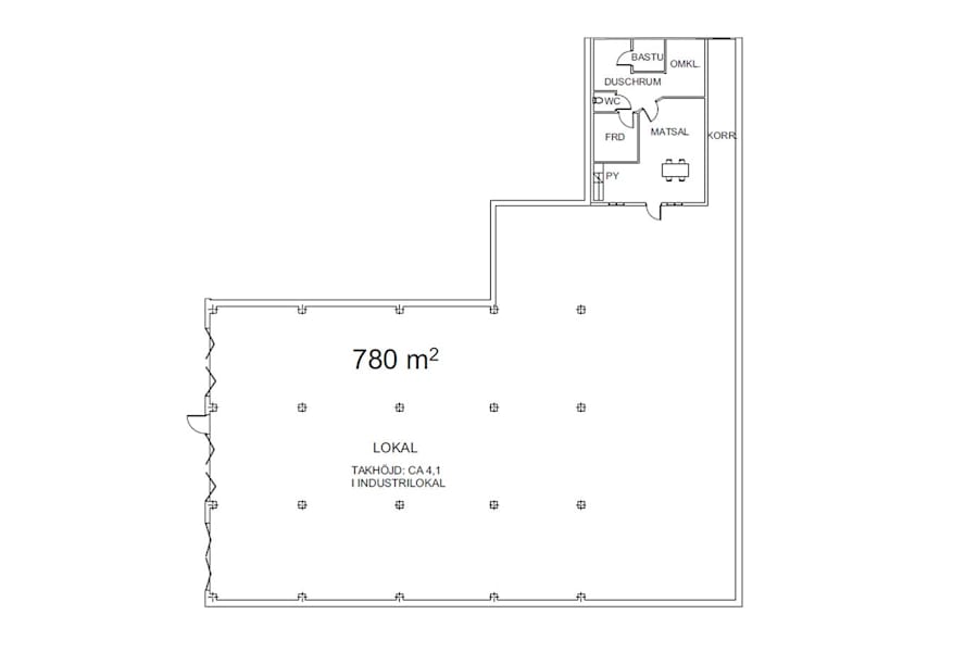
Lokalen erbjuder en genomtänkt planlösning med öppna och effektiva ytor som skapar goda arbetsflöden och flexibilitet i verksamheten. Här finns flera lastportar i markplan, vilket möjliggör smidig hantering av in- och utleveranser samt ett effektivt logistiskt flöde.
Till lokalen hör även personalutrymmen med omklädningsrum, duschar, WC, bastu, kök/pentry, kontorsytor
Detta skapar en trivsam och funktionell arbetsmiljö för både produktion och administration.
Strategiskt läge i Brunna
Fastigheten är belägen i det växande företagsområdet Brunna i Upplands-Bro, ett etablerat logistik- och verksamhetsområde nordväst om Stockholm. Läget erbjuder snabb och smidig access till E18, vilket ger utmärkta transportmöjligheter både mot Stockholm och vidare ut i regionen.
Via E18 nås stora delar av Mälardalen effektivt, med goda förbindelser till bland annat Enköping, Västerås och Örebro. Det strategiska läget gör området mycket attraktivt för företag med behov av regional distribution, produktion eller lagerverksamhet.
Brunna är dessutom ett område i stark utveckling med flera etablerade företag, god infrastruktur och närhet till service i Kungsängen.
En flexibel lokal med rätt förutsättningar för verksamheter som kräver både funktion, logistik och ett starkt läge.
Ekonomi
Tillträde: Omgående
Omgivning
Företag i närheten: Altia Sweden, Swedish Match, Ramirent, Bilia och Svensk Kosttillskott