Välkommen till Klockarbäcken! Ett expansivt område där du får möjlighet att etablera verksamhet i en fastighet som kombinerar synlighet, tillgänglighet och funktion på ett av Umeås mest strategiska lägen intill E12/E4 och väg 92.
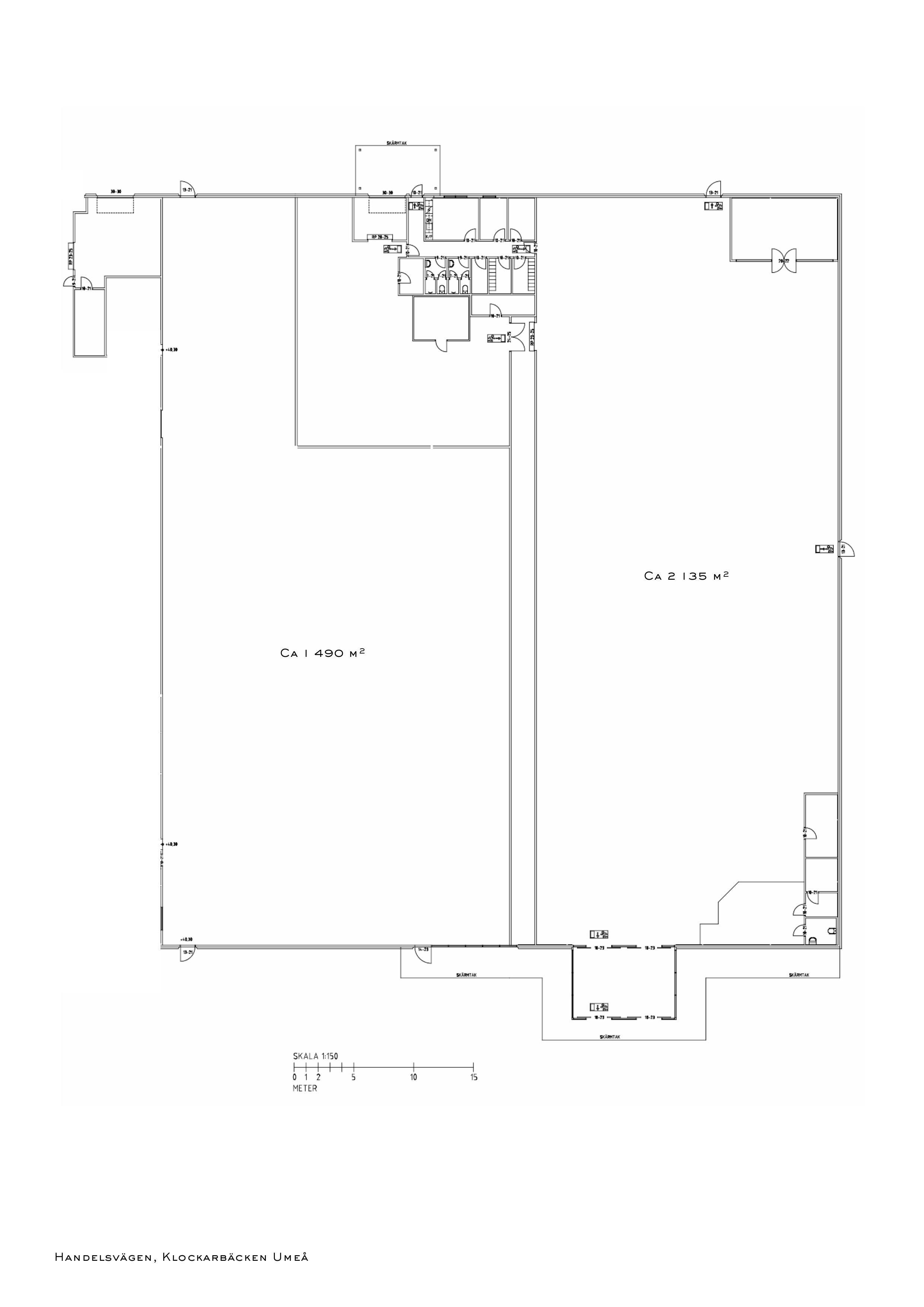
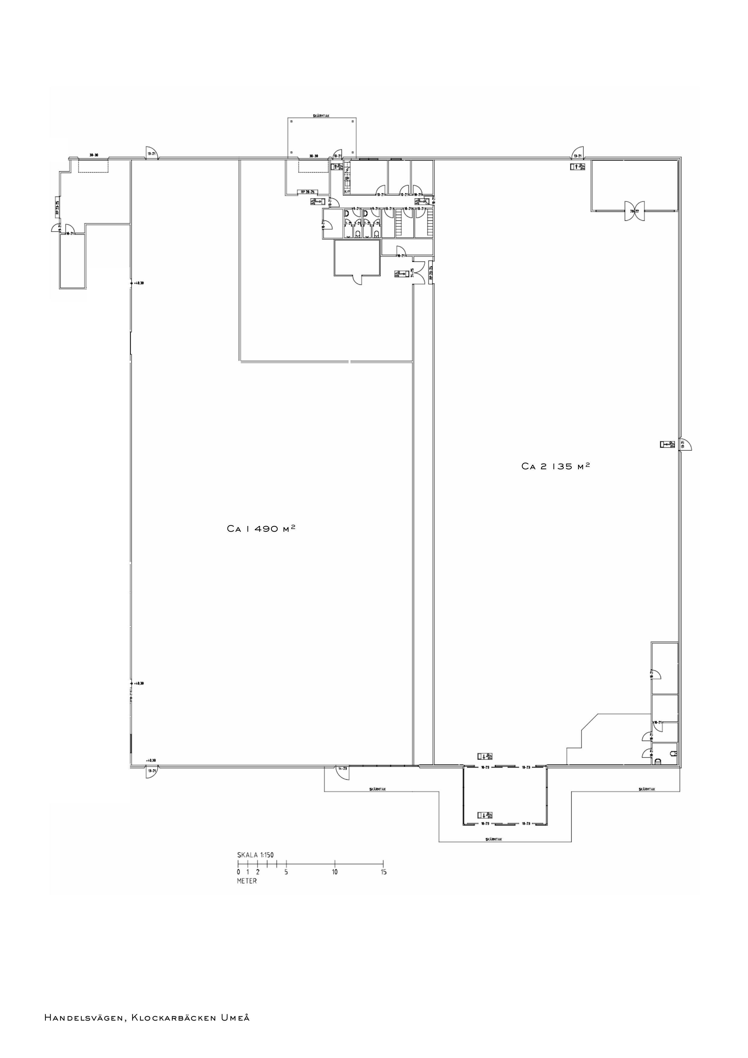
Lokalen erbjuder egen lastport för effektiv logistik, goda parkeringsmöjligheter och en flexibel planlösning som kan anpassas efter verksamhetens krav, oavsett om det gäller butik, lager eller showroom. I direkt närhet finns flera etablerade aktörer, bland annat Nordic Wellness och Willys, vilket bidrar till ett attraktivt och stabilt företagsklimat.
Kontakta ansvarig uthyrare för mer information: Emma Söderlund: Telefon: 070-929 70 07 E-post: emma@newproperty.se
Ekonomi
Kontraktstyp: Första hand Kontraktslängd: 7-15 år
Bekvämligheter
Fastigheten ligger i Klockarbäcken, ett område med ett utbud av handel och service. I direkt närhet finns Willys, Nordic Wellness och INGO, vilket ger snabb tillgång till dagligvaror, träning och drivmedel. Läget erbjuder mycket god tillgänglighet med bil, med direkt anslutning till E12, E4 och väg 92. Västra länken ger smidig infart till området och kort restid till centrala Umeå samt övriga stadsdelar. Kollektivtrafik finns också i nära anslutning. 5-10 min med bilfärd in till Umeå stadskärna.
Utförande
Byggår: 2009 Antal våningar: 1
Kommunikationer
Väg: E12/92 Buss: Busslinje 81 stannar regelbundet utanför fastigheten.