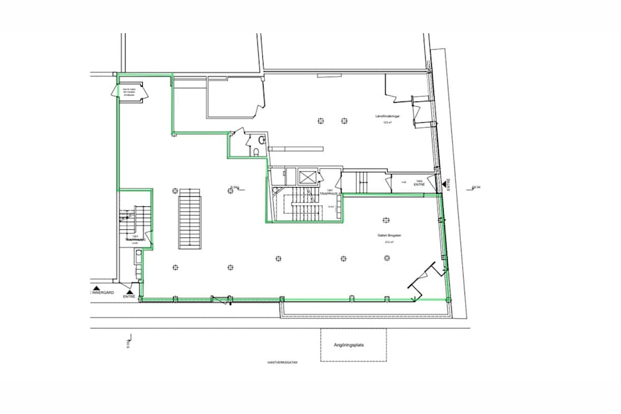
Där kullerstenstäta Brogatan möter Hantverksgatan står denna hörnlokal nu ledig med ett toppenläge för skyltning. Lokalen har en öppen planlösning på markplan om 212 kvm och 129 kvm i källarplan. I källarplan finns också personalytor som pentry och wc. De båda våningarna sammankopplas av både interntrappa och hiss.
Omgivning
Omgivning/natur: Halmstad City med allt vad det innebär. Stora Torg, Lilla torg, Nissan, mm.
Företag i närheten: Rizzo, Texas Longhorn, Åhléns, JobbKlar, Hemköp m.fl.
Parkeringsmöjligheter/garage: Flertalet parkeringshus i närområdet. Torggaraget, P-hus Radioplan, P-hus Svartmunken m. fl.
Närservice: Lokalen ligger mitt i city och har stadens utbud av restauranger, butiker och caféer precis utanför dörren.
Skyltläge: Skyltläget är toppen! Stora skyltfönster mot både Brogatan och Hantverksgatan.