Logga in
Läs mer
Lediga lokaler
Halland län
Halmstad kommun
1
2
3
4
5
6
7
8
9
10
11
Hantverksgatan 26
Ljus lokal med stora skyltfönster
302 42 Halmstad
Butik
Kontor
Storlek
205 m²
Hyra
Kontakta hyresvärd
Tillträde
Enligt överenskommelse
Beskrivning
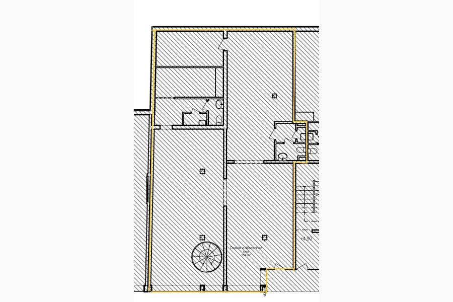
Hyr lokal för butik- eller kontorsverksamhet utmed Hantverksgatan.
Lokalen är 205 kvm fördelat på 155 kvm i markplan och 50 kvm i källarplan. Inventarier likt kassa, hyllor och liknande tillhör lokalen.
Utvändigt finns det möjlighet till att stanna till med bil för leveranser eller avhämtning.
Omgivning
Omgivning/natur:
Halmstad City med allt vad det innebär. Stora Torg, Lilla torg, Nissan, mm.
Företag i närheten:
Sweprint, Åhléns, Rituals, Hemköp m.fl.
Parkeringsmöjligheter/garage:
Flertalet parkeringshus i närområdet. Torggaraget, P-hus Radioplan, P-hus Svartmunken m. fl.
Skyltläge:
Skyltläge mot Hantverksgatan.
Kontakta
Croisette Real Estate Partner
Skicka
Emma Finnhult
Croisette Real Estate Partner
Liknande lokaler
Hantverksgatan 26
184 m²
302 42 Halmstad
Butik
Annan
...
Butikslokal utmed Hantverksgatan
Hantverksgatan 23
236 m²
302 42 Halmstad
Butik
Kontor
Annan
Lokal med skyltläge mot Hantverksgatan
Brogatan 18
200 m²
302 42 Halmstad
Restaurang
Café
...
Brogatan 18 - ett stenkast från Stora torg
Klammerdammsgatan 9
156 m²
302 42 Halmstad
Kontor
Co-work
Kontor med närhet till allt som centrum har att erbjuda
Fler lokaler från Croisette Real Estate Partner
Brogatan 3
50 - 700 m²
302 42 Halmstad
Butik
Kontor
Co-work
Lokal med Rejäl takhöjd
Klammerdammsgatan 29
170 m²
302 42 Halmstad
Kontor
Annan
Före detta psykiatri finns nu tillgänglig att hyra i Halmstad centrum
Nygatan 1
152 - 322 m²
302 42 Halmstad
Butik
Annan
Lokal i markplan endast ett stenkast från Stora torg
Klammerdammsgatan 6
232 m²
302 42 Halmstad
Kontor
Ljus och flexibel kontorslokal om 232 kvm – tillträde omgående
Visa alla lediga lokaler
Stockholm
Lediga Kontorslokaler i Stockholm
Lediga Co-work i Stockholm
Lediga Lagerlokaler i Stockholm
Lediga Industrilokaler i Stockholm
Göteborg
Lediga Kontorslokaler i Göteborg
Lediga Co-work i Göteborg
Lediga Lagerlokaler i Göteborg
Lediga Industrilokaler i Göteborg
Malmö
Lediga Kontorslokaler i Malmö
Lediga Co-work i Malmö
Lediga Lagerlokaler i Malmö
Lediga Industrilokaler i Malmö
Om
Om oss
Vad är Portally?
Q&A
Kontakt
PortallyPodden
Information
Integritet
Villkor
Cookie Policy
Förmedlingsvillkor
Blogg
Sidkarta
Förnya Cookies
Följ oss
Instagram
Linkedin
Kontakta Croisette Real Estate Partner