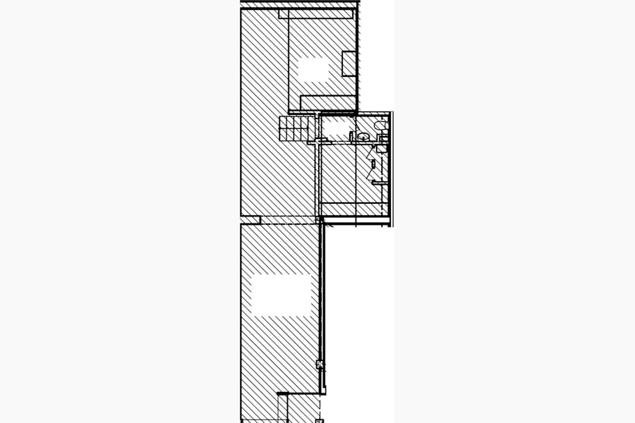
Med skyltfönster ut mot Hantverksgatan kan vi nu erbjuda 80 kvm salong med personlig känsla.
I lokalen har det tidigare bedrivits frisörverksamhet och ytan är anpassad därefter. Här finns bland annat vatten draget till schamponeringsstolar, ny ventilation och nytt kök sedan ett år tillbaka.
Det går förstås fint att bedriva annan verksamhet i lokalen också. Slå oss gärna en signal för mer information eller visning.
Omgivning
Omgivning/natur: Halmstad City med allt vad det innebär. Stora Torg, Lilla torg, Nissan, mm.
Företag i närheten: SwePrint, Texas Longhorn, Åhléns, Hemköp m.fl.
Parkeringsmöjligheter/garage: Flertalet parkeringshus i närområdet. Torggaraget, P-hus Radioplan, P-hus Svartmunken m. fl.
Närservice: Lokalen ligger mitt i city och har stadens utbud av restauranger, butiker och caféer precis utanför dörren.
Skyltläge: Skyltfönster utmed Hantverksgatan.