Nu har vi nöjet att erbjuda en inflyttningsklar lokal på Hyllie. Lokalen om 850 kvm är i stort sett rumsindelad och rummen är mycket ljusa och trivsamma. Självklart kan vi anpassa layouten om den inte överensstämmer med er verksamhets behov.
Här finns även ett konferensrum som är delbart med en praktiskt vikvägg. Allt för att optimera ytan vid olika behov.
Köket är placerat på ena gaveln i lokalen och har en underbar utsikt åt flera håll. Detta är den perfekta ytan för att avnjuta sin lunch på och samtidigt blicka ut över de spännande omgivningarna som vuxit fram. Varför inte placera en soffa för att avnjuta eftermiddagskaffet med utsikt mot Öresundsbron.
Malmö C, Kastrup och Köpenhamn når du via tåget som går precis nedanför - smidigare än så kan det inte bli. Dessutom så har du Emporia precis mittemot med sitt stora utbud av butiker och lunchrestauranger.
Här kan ni njuta av vimlet nedanför utan att störas av något.
Välkommen att kontakta mig för mer information och visning.
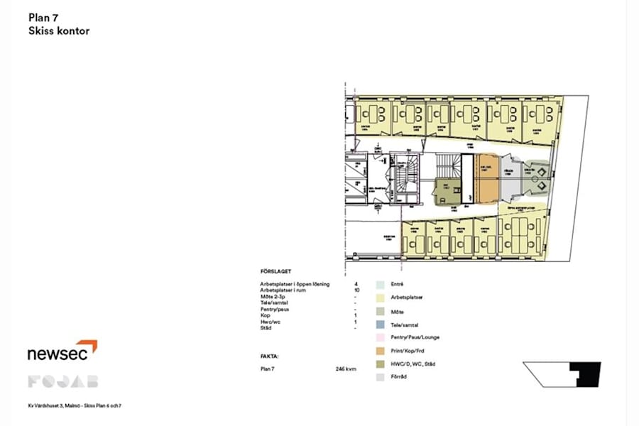
Ytor/Planlösning
Lokalen är till största delen rumsindelad idag men självklart kan vi titta på en lösning om er verksamhet har andra behov.
Bekvämligheter
I direkt anslutning till denna lokal finns all tänkbar service i området. Köpcentrat Emporia ligger tvärs över gatan och erbjuder ett stort lunchutbud samt givetvis enorma shoppingmöjligheter.
I området finns även flera gym, hotell samt Malmö Arena.
Detta är "staden i staden", här finns allt man kan tänkas behöva.
Kommunikationer
Mycket goda kommunikationsmöjligheter både med bil tåg, buss och cykel. För den bilburne finns det parkeringsgarage precis mittemot fastigheten och här löser man smidigt sitt månadskort.
Tågförbindelsen kan inte blir smidigare, Hyllie Station är precis utanför entrén.
Region- och stadsbussar stannar utanför.
Sjävklart kan du som kommer med cykel parkera den tryggt i fastighetens cykelrum.