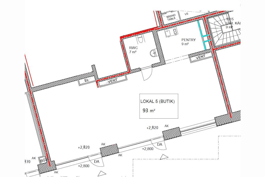
Välkommen till denna unika butiks- och kontorslokal i Malmö, belägen på Dockan. Med en yta på 93 kvadratmeter erbjuder lokalen en ljus och rymlig atmosfär, perfekt för företag som söker en modern och inspirerande arbetsmiljö.
Den generösa takhöjden och de stora fönsterpartierna skapar en öppen och luftig känsla, vilket gör det till en idealisk plats för företag som värdesätter en trivsam arbetsmiljö. Lokalen, som är belägen på första våningen i Docks, ger en imponerande utsikt över både hamnen och stadskärnan, vilket ger en unik och attraktiv arbetsplats.
Den iögonfallande arkitekturen ger inte bara en tydlig identitet i området utan gör också att din verksamhet sticker ut från mängden. Här ges möjligheten att skapa en inspirerande och professionell atmosfär för både butiks- och kontorsverksamhet.
Observera att lokalen är lämplig för butik eller kontor, men den är tyvärr inte anpassad för café- eller restaurangverksamhet. Tillträde för den här fantastiska lokalen planeras till hösten 2025.
Ta chansen att vara en del av denna dynamiska och framstående miljö i Malmö. Kontakta oss för mer information eller för att boka en visning och upplev potentialen i denna unika lokal redan idag!
Byggår: 2025
Våningsplan: 1
Planlösning: Öppen planlösning med separat köksdel och RWC.
Omgivning
Omgivning/natur: Havsnära läge ett stenkast från city.
Företag i närheten: Stort utbud av lokala och internationella företag som grannar. Dockan erbjuder ett stort utbud av restauranger i närheten.
Parkeringsmöjligheter/garage: Finns i närområdet.
Närservice: Närhet till gågatan. Även Ica Maxi, Systembolaget, frisör, skräddare och liknande service.
Skyltläge: Bra skyltläge med fönster ut mot vattnet och promenadstråk.