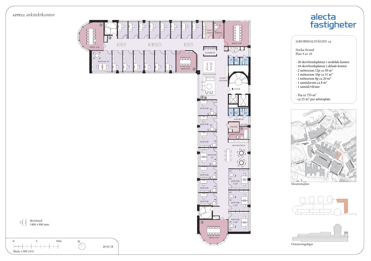
Här erbjuds en trivsam och rumsindelad kontorslokal för er som föredrar att arbeta i egna kontorsrum. När ni kliver in möts ni av en inbjudande reception- och loungeyta som ger ett professionellt och varmt första intryck för både medarbetare och besökare.
Lokalen har en genomtänkt planlösning med en mix av mindre kontorsrum samt mötesrum i varierande storlekar, vilket skapar flexibilitet för olika behov. Stort och fint pentry med plats för matgrupp – perfekt för luncher, spontana möten eller kundevent.
Varmt välkommen på visning!
Tillträde kan ske omgående om så önskas, alternativt enligt överenskommelse.
Övrig information
Miljöcertifiering: BREEAM
Ekonomi
Kontraktstyp: Första hand Kontraktslängd: 3 - 5 år Uppvärmning: 95 Kyla: 46 El: 55 Moms: Ja 25 % Miljö: 40
Bekvämligheter
Gym, Garage, Cykelparkering, Hiss: Ja., Förråd: Ja i fastigheten, Parkering: Ja garage, Internet: Fiber finns i lokalen, Ett flertal restauranger finns i området, exempelvis Sveriges bästa hamburgare från foodtrucken Funky Chicken, Claudio Kitchen & Friends - en underbar italiensk vinbar samt klassiska Restaurang J beläget vid strandkanten. Och inte minst – den prisbelönta kocken, krögaren och entreprenören Pontus Frithiof som driver Fabriken by Pontus Frithiof – en lunchkrog med inspiration från USA:s västkust. Service i fastigheten: Låsbart cykelrum samt dusch och omklädningsrum underlättar för de som önskar cykelpendla till jobbet eller varför inte ta en joggingtur på lunchen. Träning: För den som gillar att träna finns klassikern SATS på Cylindervägen 18 samt gymmet Boost nere på kajen. Och inte minst - de sköna grönområdena och vattnet!
Buss: Buss 443 eller 443C, går till Slussen och Cityterminalen. Flertalet bussar går från Nacka Trafikplats mot Nacka och Värmdö Färja: Pendelbåtar avgår från Nybrokajen, med trafik mot bland annat Djurgården, Nacka Strand och Lidingö/Ropsten.