NYPRODUCERAD LOKAL I GÄVLES NYA STADSDEL GODISFABRIKEN
En unik möjlighet att hyra en lokal i en helt ny stadsdel i norra Brynäs. Här är det nära till havet, naturen och centrala Gävle. Tillsammans med fastighetsägaren har ni möjlighet att anpassa lokalen till den önskade verksamheten. Lokalen är belägen på markplan med ingång från gatan och har stora fönsterpartier med mycket ljusinsläpp. Lokalen kommer att hålla väldigt hög standard och fastighetsägarens fokus är att alltid sätta hållbara lösningar i första hand varav byggnaden kommer att vara Svanenmärkt. I byggnaden kommer det finnas hyresbostäder 1-3 ROK.
Lokalen lämpar sig för butik, café eller annan kommersiell verksamhet.
TILLTRÄDE: Enligt överenskommelse.
FASTIGHETSBETECKNING: Brynäs 19:8
BYGGÅR: 2021
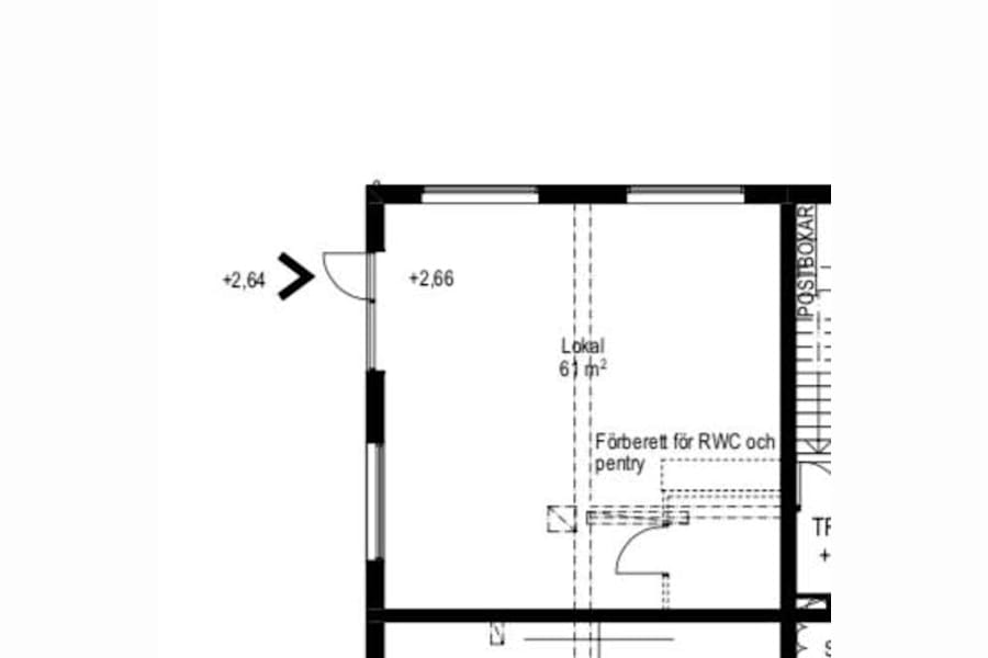
PLANLÖSNING: Nybyggd lokal med flexibel planlösning som går att anpassa enligt önskemål. Förberett för RWC och pentry.
UPPVÄRMNING: Fjärrvärme och Bergvärme, Solceller
VENTILATION: FTX
FÖRETAG I NÄRHETEN: Ica, Saluhall, Butiker och restauranger
NÄRSERVICE: Nytt och gammalt flätas samman. Här växer en helt ny stadsdel fram genom att de gamla anrika fabrikslokaler bevaras och restaureras för att bibehållas dess charm. Samtidigt pågår nu uppbyggnaden av 750 nya bostäder, kommersiella lokaler och en ny saluhall. I stadsdelen kommer det finnas butiker, restauranger, caféer, parker, grönska och ett stort torg för en central mötesplats för ung som gammal.
SKYLTLÄGE: Perfekt skyltläge i två vädersträck
KOMMUNIKATIONER
- Bussar - Cykelbanor - Bilpooler - Gångavstånd till järnvägsstation