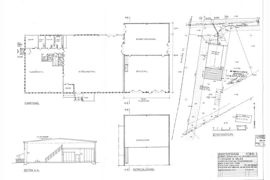
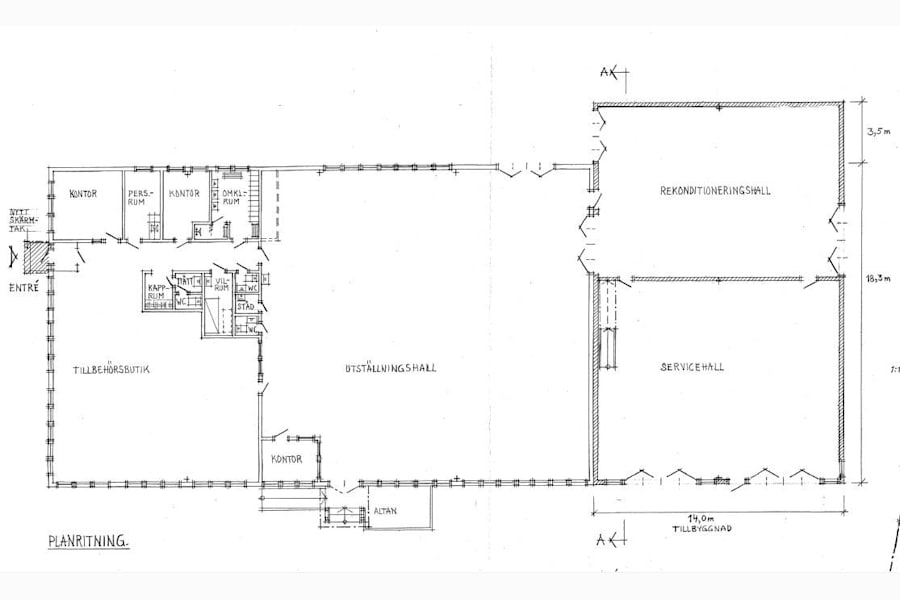
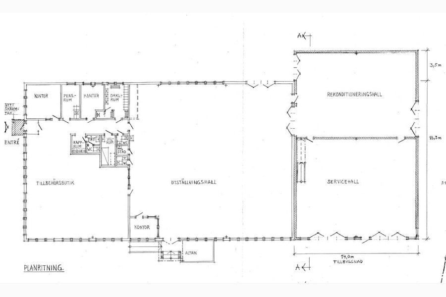
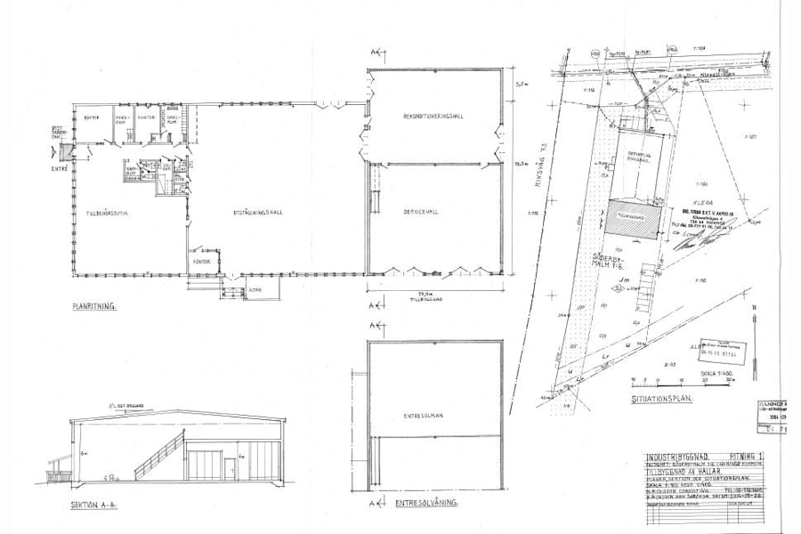
Fastigheten är fördelad i tre huvudsakliga zoner; Kontor/Kundentré, Utställningshall samt Verkstad/Tvätthall. Dispositionen gör att fastigheten lämpar sig väl för showroom och försäljning. Vidare stärker fastighetens strategiska läge förutsättningarna som butikslokal, med synlighet från Nynäsvägen.
Fastighetens utomhusytor omfattar 2 500 Kvm och omgärdas av stängsel och utomhusbelysning för ökad säkerhet.
Fastigheten har tidigare använts för försäljning av husvagnar och husbilar.
Möjlighet för tillbyggnad om ca 1 000 Kvm finns.
Kilowattvägens verksamhetsområde präglas av industri-, verkstads- och lagerverksamhet. Läget är strategiskt med mycket goda kommunikationsmöjligheter, särskilt tack vare det direkta skyltläget mot Nynäsvägen (Väg 73), vilket gör området lättillgängligt både för transporter och besökare. I närområdet finns flera företagslokaler, bilhallar och serviceinriktade verksamheter, och området utgör en del av Brandbergens södra företags- och arbetsplatsområde.
Byggår: 1980
Våningsplan: 1 av 1
Omgivning
Omgivning/natur: Snabb access till Väg 73 (Nynäsvägen) och Väg 259 (Haningeleden)
Företag i närheten: Bilia, Audi, Skoda, Volkswagen
Närservice: Området domineras av fordonsrelaterade verksamheter. Bland annat finns Bilia Haninge Audi på Kilowattvägen 7, med bilförsäljning, verkstad, däckcenter och servicecenter .
Även Bilia Haninge Volkswagen ligger nära, på Kilowattvägen 15, och erbjuder liknande tjänster inom försäljning, service och bilvård .
Flera bilverkstäder i närområdet
I Haninge finns ett stort antal verkstäder och fordonsserviceföretag, vilket gör området särskilt välförsett med teknisk service för både person- och transportfordon.
Nära till Haninge Centrum, Port 73 och Österport med bla. BILTEMA & Ica Maxi
Skyltläge: Utmärkt skyltlägen mot Väg 73 (Nynäsvägen)