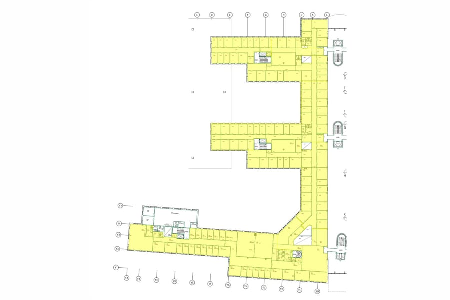
Lokal i ett plan om ca 2920 m2 belägen på plan 4 av fastigheten som totalt har 7 plan. Lokalen har 6 entréer, 14 toaletter, ett flertal pentry och hiss finns tillgängligt. I lokalen har tidigare labbverksamhet bedrivits, lokalen har därför två ytor anpassade för labbverksamhet. Utöver detta har lokalen ett flertal kontor, konferensrum och pentry. En del av kontorsrummen vätter mot byggnadens ljusgård, och resterande har utsikt mot innergård/park. Lokalen är även utrustad med en stor delningsbar samlingssal för utbildning eller andra strörre sammankomster. Lokalen är mycket anpassningsbar utan bärande innerväggar. Av lokalen är ca 1100 kvm renoverad med nya ytskikt år 2012.
Byggår: 1987
Våningsplan: 4 av 7
Planlösning: Lokal i ett plan om ca 2920 m2 belägen på plan 4 av fastigheten som totalt har 7 plan. Lokalen har 6 entréer, 14 toaletter, pentry och hiss finns tillgängligt.
Omgivning
Företag i närheten: RISE, KTH, Ericsson, Kista Galleria
Parkeringsmöjligheter/garage: På källarplan finns ett stort garage för anställda att hyra (vanliga och el-platser), med visst antal avgiftsbelagda besöksplatser.
Närservice: I Fastigheten finns restaurangerna Provence och Sushi Heaven Kista. I närområdet finner du Grönlandsparkens "The Hub," en livlig mötesplats som arrangerar olika events, After Works och har foodtrucks på plats. Kistamässan, som också ligger i närheten, är en av Stockholms största arenor för företagsevent, utställningar, kongresser, bankettmiddagar, konserter, festivaler och internationella utställningar. Dessutom ligger Kista Galleria bara ett stenkast bort och erbjuder en rik variation av restauranger från världens alla hörn. Ett flertal gym finns också inom bekvämt avstånd.
Skyltläge: Möjlighet för montage av fasadskylt finns.