Fastigheten är snart fullt uthyrd men än finns möjlighet att hyra den sista lokalen.
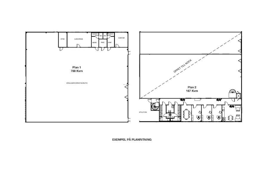
Fakta om lokalen (miljöbyggnad): Total yta: ca 1 000 m² Lager: ca 788 m² Plan 2 (t.ex. kontor/utställning): ca 167 m² Möjlighet att dela upp lokalen på två hyresgäster men man ser helst en tagare på hela ytan Inflyttning: Q2 2026 Uthyres på ritning – möjlighet att anpassa utifrån er verksamhets behov Användningsområden: höglager, verkstad, butik, showroom eller kombination
Läget: Exponeringsläge direkt intill E4 – perfekt skyltläge Beläget i Hemgården, ett område med välkända aktörer och växande trafikflöden Attraktiv och dynamisk miljö för både etablerade och nya verksamheter Varför välja Hemgården: Sista lediga lokalen – övriga är redan uthyrda Området präglas av expansiv handel och logistik: Möjlighet att etablera er verksamhet i en av Nyköpings mest attraktiva företagsmiljöer
Förslag på planritning finns i annonsen.
VISNING/KONTAKT - JOANNA
Vänligen respektera säljarens / hyresvärdens önskemål om bokad visning.
För mer information eller visning av objektet, hör av er till Locus Advice genom kontaktformuläret eller ring Joanna Eriksson på tel 08-558 094 43.
Växeln är öppen helgfria vardagar mellan 08.30-17.00: Locus Advice tel 08-558 094 40
LOCUS ADVICE
Locus Advice är ett fastighetskonsultbolag med fokus på kommersiella fastigheter och lokaler. Vi arbetar med
Genom etablerade samarbeten med både stora och små fastighetsägare har vi tillgång till ett stort utbud av lokaler utöver vad vi kan marknadsföra i vår egen regi. Via dessa samarbeten kan vi med stor sannolikhet hjälpa er hitta den lokal ni söker efter.