Välkommen till vår butikslokal vid torget i hjärtat av Katrineholm!
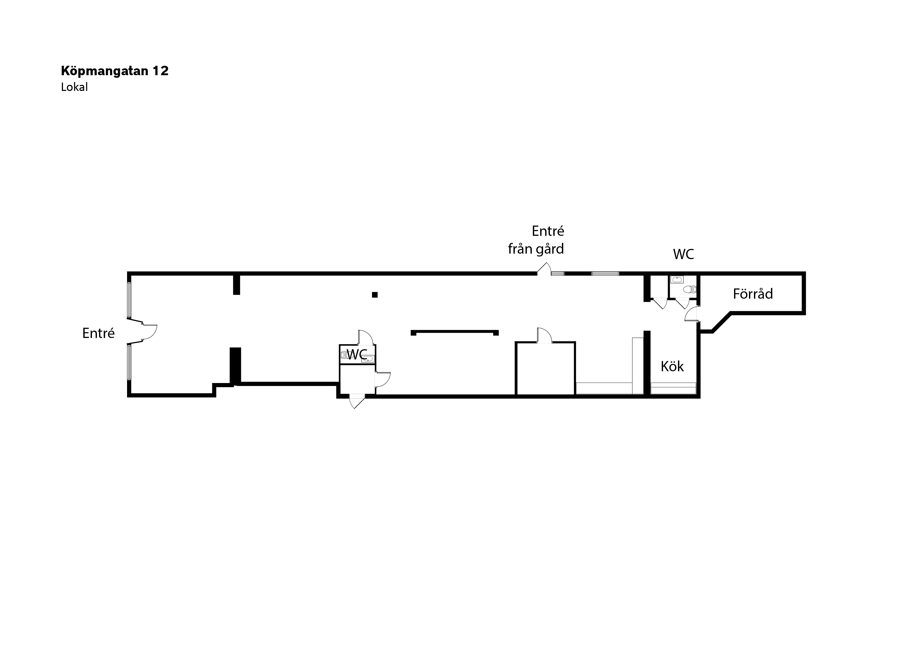
Med sina generösa 200 kvadratmeter erbjuder vår ljusa och fräscha lokal en idealisk plats för din nästa affärsidé. Belägen mitt i centrum av Katrineholm, är lokalen perfekt för att locka kunder och skapa en levande och dynamisk affärsmiljö.
Med närhet till torget har du tillgång till en ständig ström av människor som passerar förbi, vilket ger ditt företag en fantastisk möjlighet att nå ut till en bred publik. Våra rymliga och ljusa lokaler ger dig möjlighet att skapa en lockande och inspirerande butiksmiljö där kunderna gärna spenderar sin tid.
Intill butiken finns Fotografens Cafe & Bistro, BELA, Subway, Åhléns och Libink Ost & Deli, vilket ger ytterligare dragkraft för att locka kunder och skapa en levande och pulserande handelsplats.
Lokalen inrymmer idag en skönhetssalong med framdraget vatten och ventilation anpassat för frisörer och nagelvård.
Oavsett om du planerar att öppna en butik, skönhetssalong, showroom eller ett kreativt kontor, är vår butikslokal vid torget i Katrineholm den perfekta platsen för din verksamhet att blomstra. Kontakta oss idag för att boka en visning och upptäck möjligheterna som väntar dig.