Mitt i Brommastaden, intill Bromma Blocks, ligger Hangar 5 – ett modernt kontorskvarter med högsta miljöcertifiering (BREEAM Outstanding). Här kombineras hållbarhet, flexibilitet och trivsel i en dynamisk miljö.
Kontorsmöjligheter
Service & Bekvämligheter
Träning & Hälsa
Kommunikation & Parkering
Ta chansen att etablera er på en adress som skapar värde för er och era medarbetare.
Ytor/Planlösning
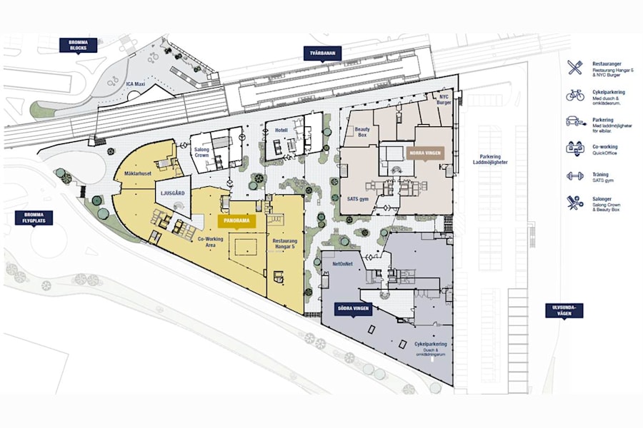
I Hangar 5 finns kontorslokaler från ca 485 kvm och uppåt. Lokalerna är nyproduktion och anpassas efter behov och önskemål.
Övrig information
Miljöcertifiering: BREEAM
Ekonomi
Kontraktlängd: Långtidskontrakt
Kontrakttyp: Förstahandskontrakt
Tillträde: Enligt överenskommelse
Hyresinformation: Lämnas på begäran
Utförande
Fastighetsbeteckning: Stockholm Trafikflyget 11
Byggår: 2022
Energiklass: B
Uppvärmning: Vattenburen värme
Omgivning
Omgivning/natur: Hangar 5 ligger mellan Bromma Blocks och Bromma flygplats i nära anslutning till områden som Ulvsunda, Sundbyberg, Solna Strand och Spånga.
Företag i närheten: Coromatic, NCC, XXL, Quick Office, Sharp, BRA, St1, Husab, Svenska möten, Bromma stadsdelsförvaltning, Micropower, m.m.
Parkeringsmöjligheter/garage: Parkeringsplatser finns i garage och utomhus för hyresgäster och besökande. För personal kan man skaffa p-tillstånd som ger rätt till parkering på obestämd plats helgfria vardagar kl. 07.00-18.00. Fler fordon kan nyttja samma tillstånd. Det går även att parkera gratis i 2 timmar på Hangar 5 och 3 timmar på Bromma Blocks.
Skyltläge: Mycket bra skyltmöjligheter på fasad ut mot Ulvsundavägen och Bromma Blocks.
Vägbeskrivning: Hangar 5 ligger mitt emot Bromma Blocks intill Ulvsundavägen och Flygplatsinfarten.