Välkommen till en ljus lokal på Kronobergsgatan! Här samsas mötesrum i olika storlekar med öppet kontorslandskap. I lokalen finns även pentry, ett förråd samt två WC varav den ena med dusch och bastu. Flertalet fönster skänker lokalen med ljusinsläpp. Möjlighet finns att anpassa lokalen till vad som passar just er verksamhet.
Här har ni hela Kungsholmens rika utbud av service inom räckhåll. I närområdet finns gott om restauranger, caféer, träningsmöjligheter och annan närservice. Läget är mycket kommunikativt med nära till tunnelbana, bussar och goda cykelförbindelser. För den bilburna personalen finns dessutom lediga garageplatser att hyra i fastigheten, vilket är en stor fördel i centrala Stockholm. Kontakta oss för att boka in en visning!
Omgivning
Fastigheten ligger med ena foten på Sankt Eriksgatan och den andra på Kungsholms strand. Här kan du med enkelhet välja om du vill gå mot lunchrestauranger, kommunaltrafik och butiker eller om du vill gå ner mot lugna och fridfulla Kungsholms strand där det finns promenadstråk längs vattnet och ett utomhusgym ett stenkast bort från fastigheten.
Service: Brett utbud av service i anslutning till fastigheten med restauranger, Galleria, butiker samt SATS Sportpalatset i fastigheten. Du hitttar även Friskis & Svettis i grannfastigheten. En promenad över Sankt Eriksbron leder dig till härliga Rörstrandsgatan där du finner ett brett lunchutbud och många uteserveringar på sommarhalvåret.
Kommunikationer: Tunnelbana Fridhemsplan där du väljer mellan grön och blå linje. Innerstadsbussar - t ex 1:ans och 4:ans linje.
Parkering: Gott om garageplatser i huset. Kostnad: ca 2 900 kr/plats/mån.
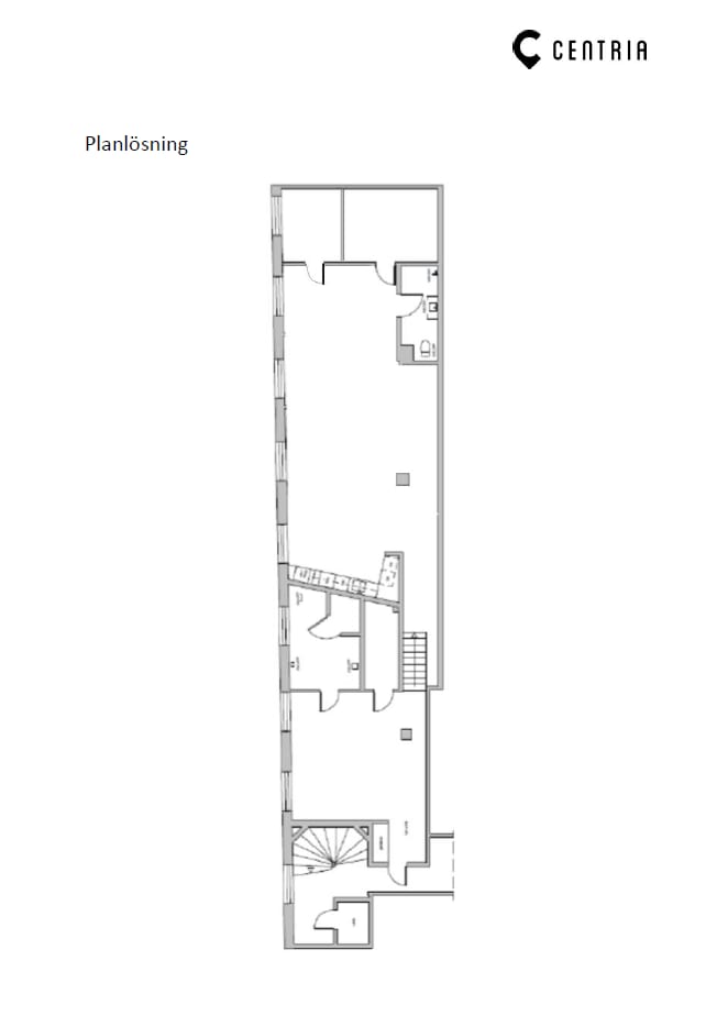
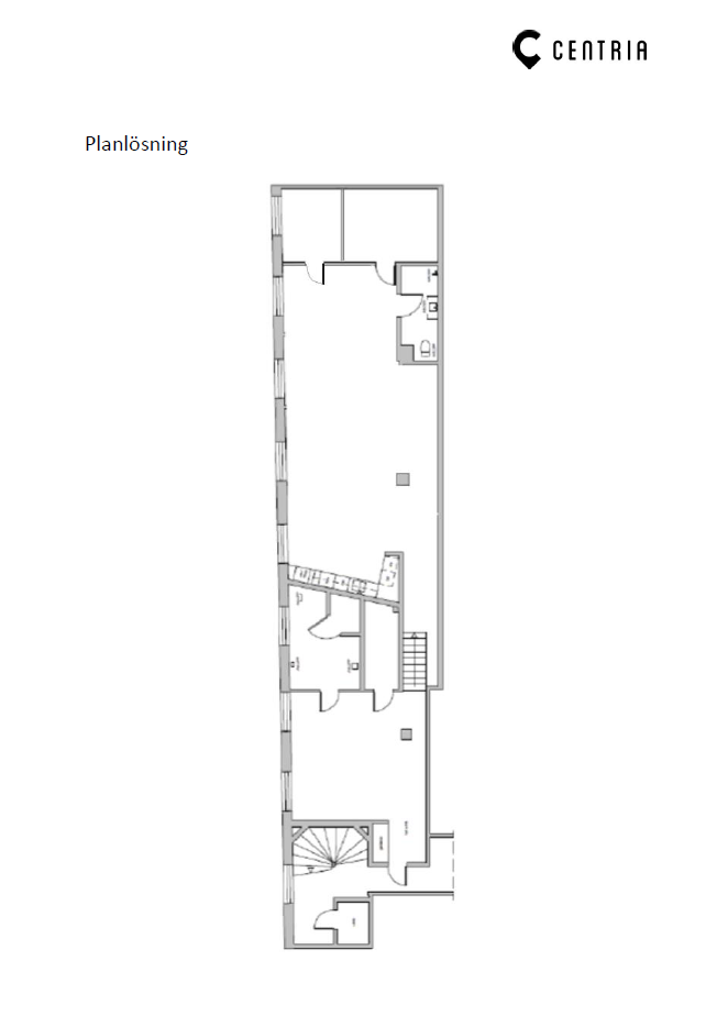
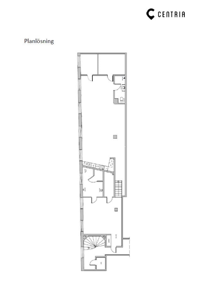
Planlösning: Lokalen är utformad med tre kontorsrum i olika storlekar, en öppen kontorsyta, pentry, ett förråd samt två WC varav den ena med dusch och bastu.