Denna kombinerade lager- och kontorslokal omfattar totalt <strong>706 kvm</strong>, fördelat på <strong>markplan</strong> och <strong>entresolplan</strong>. <strong>Lagerdelen om 516 kvm</strong> erbjuder generösa ytor med <strong>6,5 meters takhöjd</strong>, stora öppna ytor och utmärkta lastningsmöjligheter via egen markport.
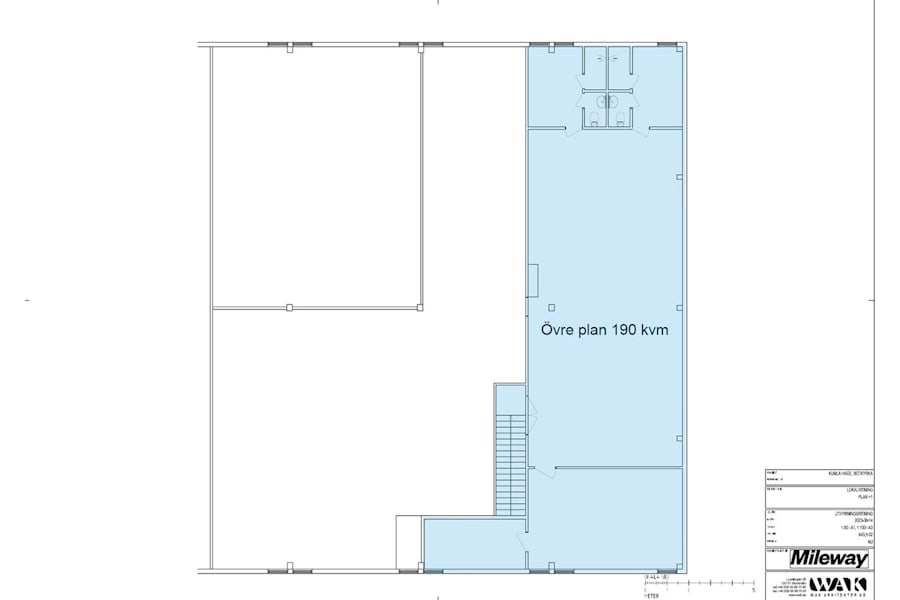
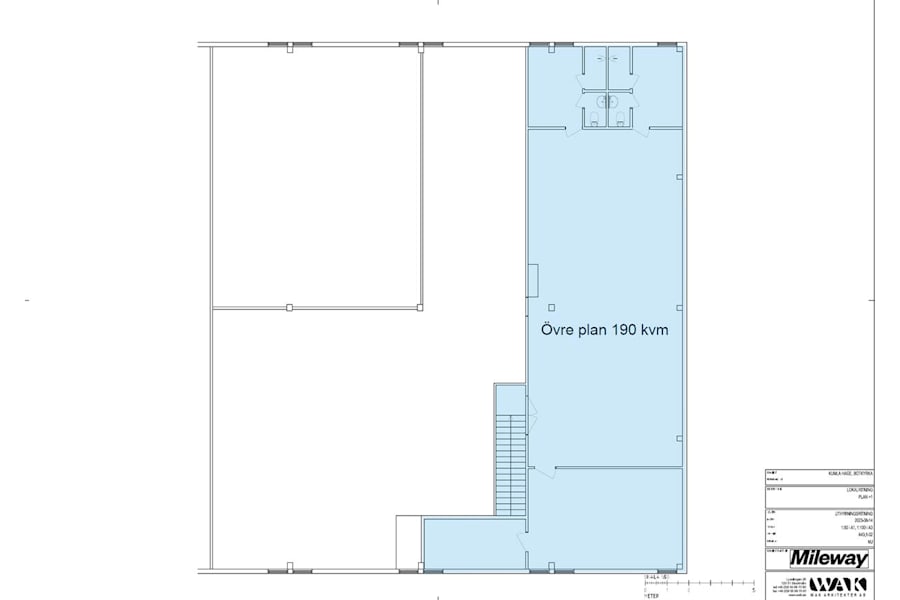
<strong>Kontorsdelen om 190 kvm</strong> rymmer både öppna arbetsytor och mindre kontorsrum samt kompletta faciliteter såsom <strong>pentry, omklädningsrum och WC</strong>.
Fastigheten är belägen på ett <strong>inhägnat område</strong> med <strong>asfalterad gårdsyta</strong> och mycket goda <strong>parkeringsmöjligheter</strong> i direkt anslutning till lokalen.
Eriksbergs industriområde ligger cirka <strong>20 minuter söder om centrala Stockholm</strong>, i ett strategiskt läge intill <strong>E4/E20 och Hågelbyleden</strong>. Området präglas av lättindustri och handel, och i närliggande <strong>Alby och Hallunda Centrum</strong> finns ett brett utbud av service, butiker och lunchrestauranger. Här finns även goda <strong>kollektivtrafikförbindelser</strong> med både buss och tunnelbana.
Byggår: 1985
Våningsplan: 1 av 2
Planlösning: Se bilder/PDF.
Omgivning
Företag i närheten: BAUHAUS, Biltema, Mekonomen, Ahlsell och CityMail
Parkeringsmöjligheter/garage: Parkering mot avgift
Närservice: Stort serviceutbud av butiker och lunchrestauranger i närliggande Alby och Hallunda Centrum