Coworking i historiska lokaler i den gamla Sjöbefälsskolan från 1861 med takterass, tornrum och utsikt över Göteborgs hamninlopp. Endast 10 minuters promenad från centralstationen.
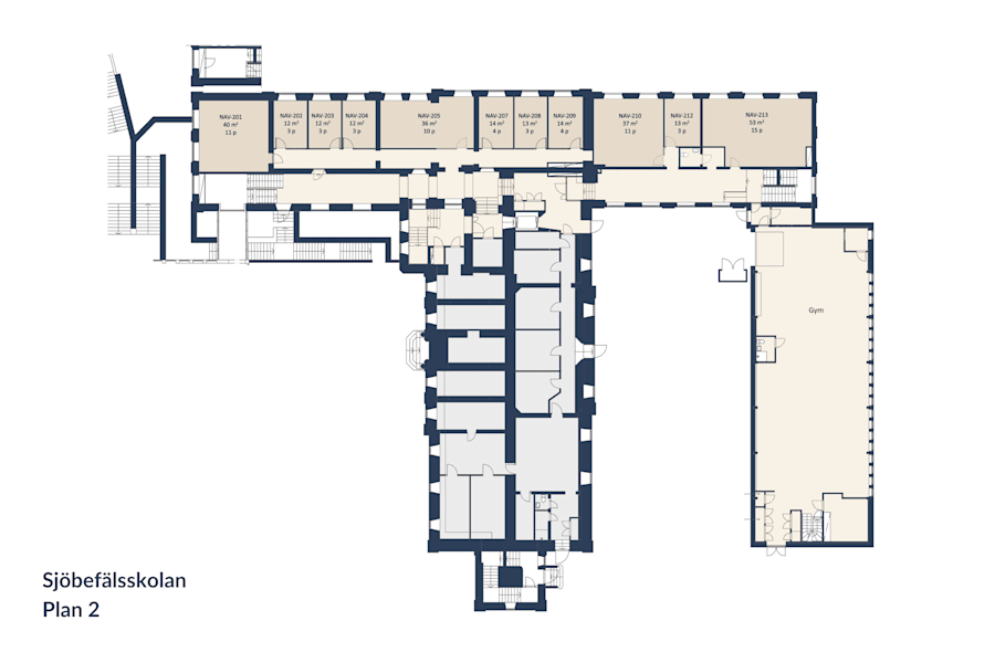
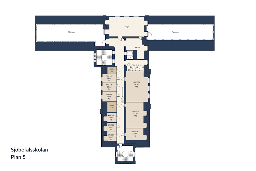
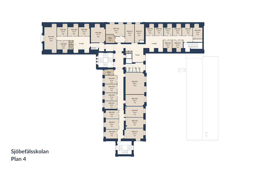
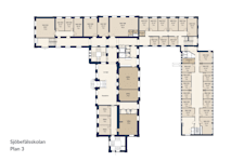
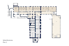
• 4 000 kvm i fem plan, inklusive takterass och tornrum.
• Historiska lokaler mitt i stan med magifik utsikt över hamninloppet.
• Eget kontor, flexibel plats eller affärsadress.
• Frukostbuffé varje dag.
Flexibel plats
Om du väljer flexibel plats får du tillgång till delade, tysta kontorsrum och sociala lounger på alla våra adresser. Flexibel plats är perfekt för dig som inte har behov av eget kontor, men fortfarande vill ha en social arbetsplats. Vi erbjuder både månadsbetalning och dagspass.
Eget kontor
Stäng dörren om er skräddarsydda arbetsplats och nätverka med andra spännande företag i reception, konferensrum, kök och lounge. Egna kontor, liksom daglig frukostbuffé, finns för både små och stora företag - växer ni, så växer kontoret med er!
Affärsadress
Jobbar du helst hemma, men behöver boka mötesrum ibland? Vill du ha en officiell adress och hjälp med posthantering? Med vårt virtuella kontor har du din adress och posthantering hos oss och får förmånliga priser på mötes- och konferensrum.
Omgivning
Sjöbefälsskolan ligger vackert och centralt uppe på Kvarnberget. 10 minuters promenad från centralstationen. 7 minuters promenad från såväl Lilla Bommen som Brunnsparken.