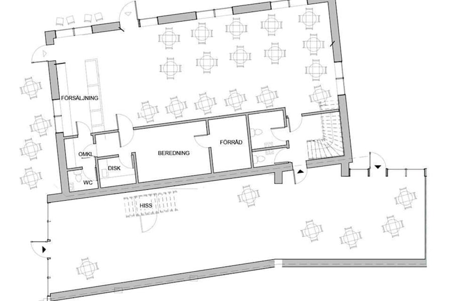
Här finns möjlighet att hyra lokaler från 105 till 900 kvm, fördelade på flera våningsplan. Byggnaden genomgår just nu en omfattande ombyggnation, vilket ger dig som hyresgäst en unik möjlighet att vara med och påverka utformningen utifrån din verksamhets behov.
Lokalerna passar utmärkt för kontor, vård, utbildning eller showroom. Planlösningen kan anpassas och utformas i dialog med dig som hyresgäst, exempelvis med reception, väntrum, mötesrum, behandlingsrum eller personalutrymmen.
Med god tillgänglighet, bra ljusinsläpp och ett centralt läge i Kävlinge erbjuds en trivsam och funktionell arbetsmiljö. I direkt närhet finns kollektivtrafik, service, caféer och grönområden, en attraktiv kombination av tillgänglighet och lugn.
Välkommen att kontakta oss för mer information eller för att boka en visning!