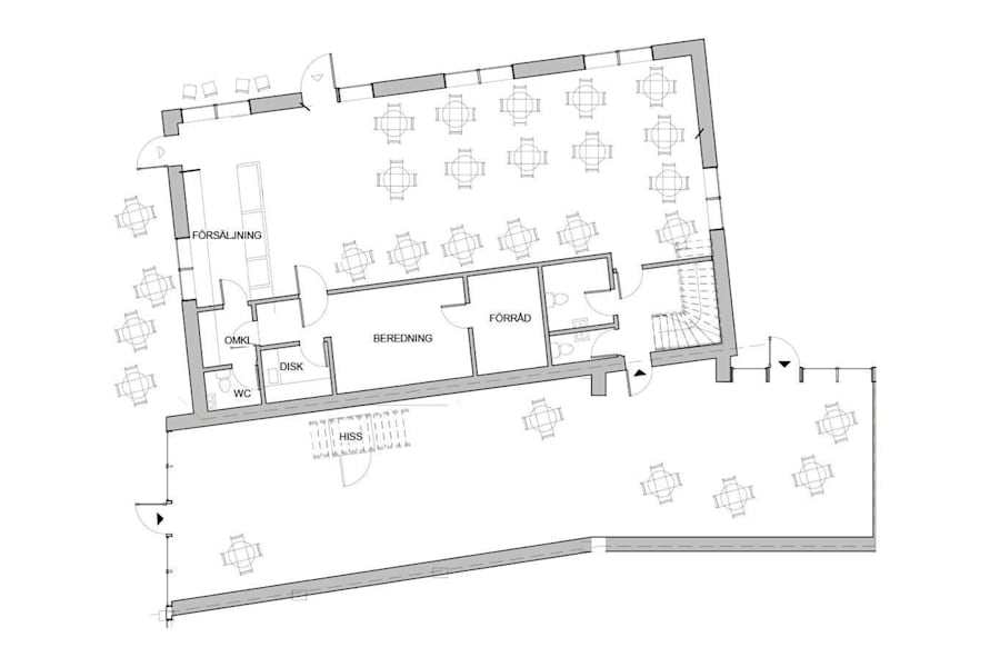
Nu finns en unik möjlighet att öppna din verksamhet på Kvarngatan 70 – en ljus och rymlig lokal om 170 kvm i markplan, särskilt utformad för mat- och dryckesverksamheter.
Lokalen i korthet:
Stora fönster mot gatan – maximalt ljusinsläpp och utmärkta skyltmöjligheter
Öppen och flexibel planlösning – enkelt att anpassa för servering, bakning, matlagning eller kundområden
Generös takhöjd och ljus miljö – skapar en trivsam atmosfär för både kunder och personal
Läge och tillgänglighet:
Endast ett stenkast från Kävlinge station
Närhet till bostadsområden, kontor och annan service
Naturligt kundflöde från både boende och pendlare
Med centralt läge, generösa ytor och smart planlösning erbjuder lokalen en perfekt möjlighet att skapa ett inspirerande och lönsamt café, bageri eller pizzeria i en växande ort.
Kontakta oss för mer information eller för att boka en visning!