Nu finns en unik möjlighet att hyra en <strong>stor och modern lokal</strong> i Jordbro Företagspark, perfekt för lager- eller produktionsverksamhet. Lokalen kombinerar <strong>rymliga lagerytor</strong> med ljusa och välplanerade kontor, vilket skapar en effektiv och trivsam arbetsmiljö.
<strong>Lokalen i korthet</strong>
<strong>Områdesfördelar</strong>
Jordbro Företagspark är en <strong>attraktiv och expansiv företagsmiljö</strong>, belägen endast <strong>25 km söder om centrala Stockholm</strong>. Området erbjuder:
Denna lokal är en <strong>utmärkt lösning för företag som söker en flexibel och modern verksamhetslokal i ett strategiskt läge</strong>.
<strong>Kontakta oss för mer information eller för att boka en visning!</strong>
Byggår: 2006
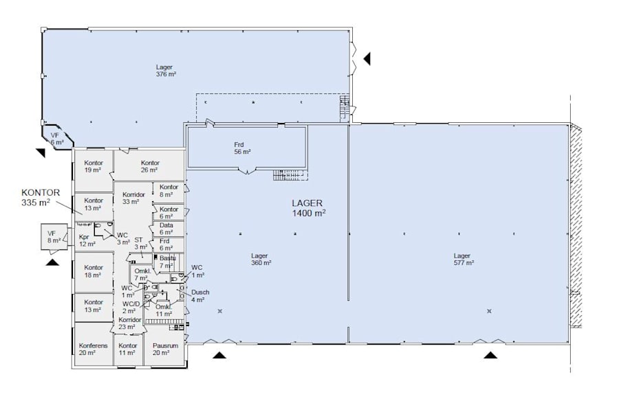
Planlösning: Se bilder/PDF.
Omgivning
Företag i närheten: Coca-Cola, Bring, TD TechData, Frigoscandia, Dagab, Åhléns och Green Cargo
Parkeringsmöjligheter/garage: Fri parkering
Närservice: Lokalt serviceutbud med bland annat lunchrestauranger, gym och apotek