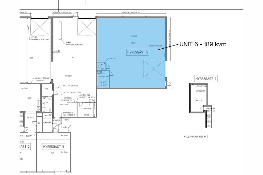
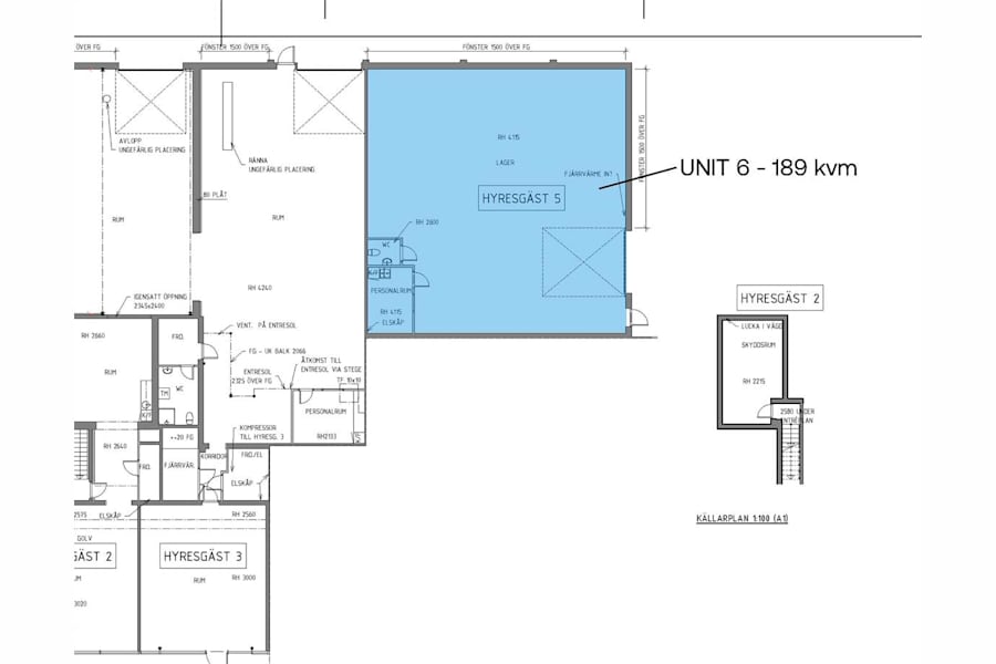
Industri- och butiksfastighet med ledig lagerlokal om 189 kvm. Lokalen är belägen på markplan och har flera fönster som ger ett naturligt ljusinsläpp. Det finns en egen markport för smidig in och urlastning samt goda möjligheter för effektiv lagerhållning med en takhöjd på 4 meter. Faciliteter erbjuds i form av WC och pentry. Byggnaden består av ett plan med ett flertal butiker och industrilokaler. Det finns fri parkering i anslutning till lokalen.
Industriområdet Larsfrid ligger endast 3 km söder om centrala Halmstad och utgör ett optimalt logistikläge i direkt anslutning till E6/E20, nära Halmstad hamn samt vid knutpunkten för riksväg 15, 25 och 26. Högskoleområdet erbjuder ett brett serviceutbud av butiker och restauranger. Det finns goda kollektivtrafikförbindelser med buss till centrala Halmstad.
Ytor/Planlösning
Finns bland bilder/som PDF.
Ekonomi
Kontraktlängd: Förhandlingsbart
Kontrakttyp: Förstahandskontrakt
Tillträde: Enligt överenskommelse
Utförande
Fastighetsbeteckning: Flaggan 1
Byggår: 1959
Våningsplan: 1 av 1
Takhöjd: 4 m
Omgivning
Företag i närheten: Lidl, Snabbgross, Derome, Biltema Logistics AB och Access Logistics
Parkeringsmöjligheter/garage: Fri parkering
Skyltläge: Bra exponering av skyltläge i ett levande och expansivt område