Letar du efter en kombinerad verkstad- och kontorslokal med tvätthall, generös takhöjd och inhägnad gårdsyta? Denna flexibla lokal i Hackefors industriområde erbjuder en effektiv helhetslösning för verksamheter inom fordon, service och lätt industri. Med stora öppna ytor, tre markportar och goda personalutrymmen är lokalen redo att anpassas efter er verksamhet.
<strong>Lokalens höjdpunkter:</strong>
<strong>Tre markportar och tvätthall</strong> – för smidig in- och utlastning samt effektiv hantering av fordon eller utrustning
<strong>Takhöjd ca 5 meter</strong> – rymligt och anpassningsbart för verkstad, produktion eller lagerverksamhet
<strong>Personalytor</strong> – utrustat med kök, matsal, omklädningsrum (dam/herr), dusch, WC och RWC
<strong>Generösa markytor</strong> – inhägnad gårdsyta om ca 1 664 kvm samt ytterligare ca 900 kvm uppställningsyta utanför lokalen
<strong>Parkering direkt utanför</strong> – gott om plats för personal, kunder eller servicefordon
<strong>Möjlighet till anpassning</strong> – vissa delar av lokalen kan justeras utifrån verksamhetens behov
<strong>Strategiskt läge med hög tillgänglighet</strong>
Hackefors ligger endast 6 km från centrala Linköping, i direkt anslutning till riksväg 35 som vidare kopplar mot E4. Det ger utmärkt tillgänglighet för såväl transporter som personal. Området är etablerat med verksamheter inom lättindustri, tillverkning och service, och har goda kollektivtrafikförbindelser med buss. Dessutom finns närhet till Linköping flygplats, vilket ytterligare förstärker områdets logistiska fördelar.
<em>Kontakta oss för mer information eller för att boka en visning – nu har ni chansen att säkra en framtidssäkrad lokal med alla rätta förutsättningar.</em>
Byggår: 1971
Våningsplan: 1 av 2
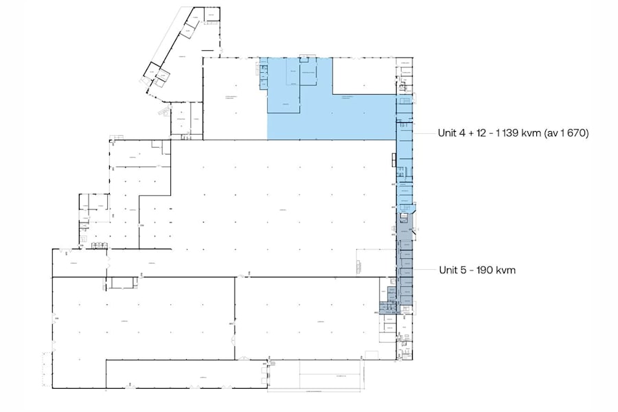
Planlösning: Se bland bilder/PDF.
Omgivning
Företag i närheten: SAAB, Linköping Logistikcenter och Linköping City Airport
Parkeringsmöjligheter/garage: Fri parkering
Närservice: Enklare serviceutbud av butiker och lunchrestauranger i närområdet
Skyltläge: Bra exponering av skyltläge ut mot riksväg 35