Här finns en flexibel och rymlig lokal om 190 kvm i markplan som kan anpassas för både kontorsverksamhet och som lättare plocklager, exempelvis för en e-handelsverksamhet. Lokalen har i dagsläget en kontorsindelad planlösning med generösa gemensamma utrymmen, inklusive mötesrum, pentry, omklädningsrum, dusch samt WC/RWC.
Byggnaden erbjuder utmärkt skyltläge mot vältrafikerade riksväg 35, vilket ger god exponering, och det finns fri parkering invid lokalen.
Perfekt för företag som söker ett flexibelt och lättillgängligt läge med allt som behövs för att driva sin verksamhet.
Område: Hackefors industriområde ligger precis intill Linköping flygplats och endast 6 kilometer sydost om centrala Linköping. Området är optimalt ur logistiksynpunkt och närliggande riksväg 35 leder vidare till E4 på endast några minuter. Idag präglas området främst av företag inom tillverkning och lättindustri, och det planeras på sikt att växa i flera etapper kommande år. Det finns goda kollektivtrafikförbindelser med buss till centrala Linköping.
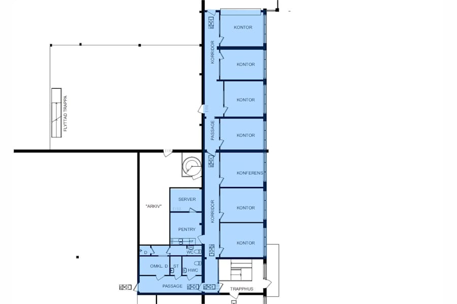
Ytor/Planlösning
Se bilder/PDF.
Ekonomi
Kontraktlängd: Förhandlingsbart
Kontrakttyp: Förstahandskontrakt
Tillträde: Omgående
Utförande
Fastighetsbeteckning: Kättaren 7
Byggår: 1971
Renoveringsår: 1990
Våningsplan: 1 av 2
Omgivning
Företag i närheten: Linköpings Motorstadion, P&L Byggställningar och Linköpings Bil & Marintextil AB
Parkeringsmöjligheter/garage: Fri parkering
Skyltläge: Bra exponering av skyltläge ut mot riksväg 35
Vägbeskrivning: Nära anslutning till riksväg 35 som leder vidare till E4