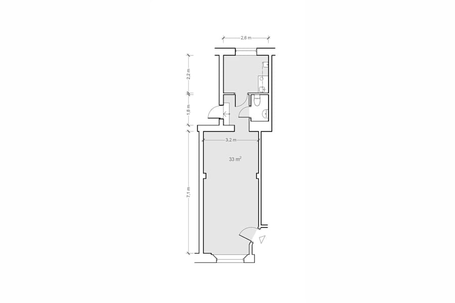
Nu finns möjlighet att hyra en mindre lokal passande för butik, kontors eller salongsverksamhet. Ytan är 32 kvm och består av en öppen yta med ett stort skyltfönster som ger bra exponering mot Linnegatan.
Det finns en mindre bakyta för personal med kök, toalett och plats för paus.
Välkomna på visning!
Omgivning
Företag i närheten: Hemmakväll, Limhamns konsthall, Kaka på kaka, Kochi, New Star Saigon med flera.
Parkeringsmöjligheter/garage: Det finns parkeringsmöjligheter i området.
Skyltläge: Bra skyltläge.