På ett av Malmös mest lättillgängliga logistiklägen finns nu möjlighet att hyra en mångsidig lokal om totalt 2 066 kvm, med stor potential för anpassning. Fastighetens placering vid Lundavägen ger omedelbar närhet till Inre Ringvägen och motorvägsnätet, samtidigt som det goda utbudet av kollektivtrafik underlättar för personal som pendlar.
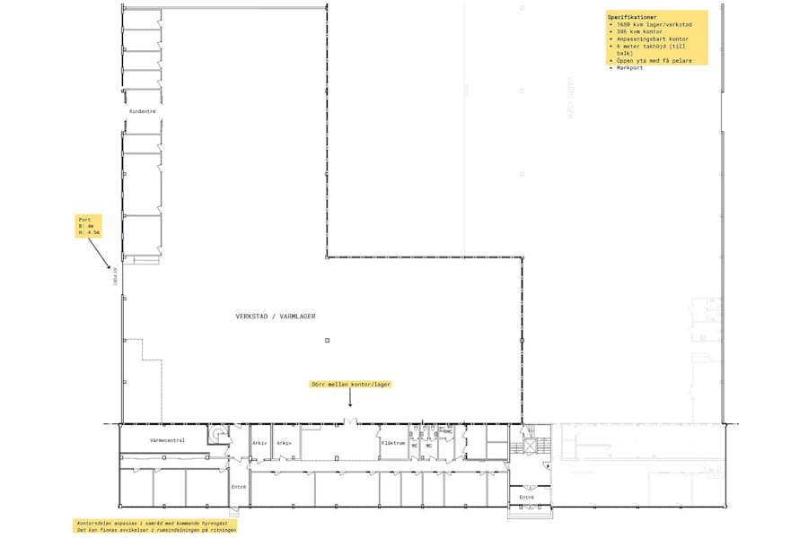
Lager och verkstad (1 680 kvm): Lagerdelen kännetecknas av en öppen planlösning som till största del är fri från pelare, vilket skapar maximal flexibilitet för inredning och flöden. Med en generös takhöjd på minst 6 meter under balk och stora markportar är lokalen optimerad för effektiv hantering. Utöver varumottagning finns även en separat entré för butik eller kundmottagning.
Kontor och personalytor (386 – 1 326 kvm): Kontorsdelen på markplan (386 kvm) har direkt interndörr till lagret samt egen entré via trapphuset. För verksamheter med större administrativa behov finns ytterligare två kontorsplan om ca 470 kvm vardera. Dessa plan kan sammankopplas via en intern spiraltrappa, och hiss finns i fastigheten.
Anpassning: Här finns goda möjligheter att anpassa planlösning och standard så att de möter er verksamhets specifika behov och önskemål.
Kort om lokalen:
Lager/verkstad: 1 680 kvm pelarfritt, takhöjd +6m, markport och butiksentré.
Kontor markplan: 386 kvm med direktanslutning till lager.
Expansionsyta: Ytterligare ca 940 kvm kontor på plan 2 & 3.
Parkering: Mycket goda parkeringsmöjligheter på fastigheten.
Byggår: 1970
Våningsplan: 1 av 3
Planlösning: Lagerlokal / verkstad med takhöjd på lägst 6 meter till balk med direkt anslutning till anpassningsbara kontorsytor.
Omgivning
Företag i närheten: NetOnNet, Servicekuben, Probike, Transdev
Skyltläge: Skyltläge ut mot Lundavägen