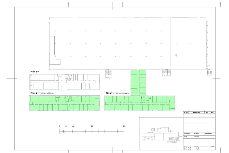
Här finns möjlighet att hyra upp till 1 450 kvm flexibla kontorsytor i ett attraktivt läge på Luxorgatan 1. Lokalerna är fördelade över två plan och kan anpassas helt efter era behov.
Lokalbeskrivning:
Anpassningsbara ytor: Lokalerna kommer att skräddarsys i samråd med er för att möta just era krav, oavsett om ni behöver öppna ytor, mötesrum eller sociala ytor för medarbetarna.
Bilder och mer information kommer snart! Under tiden är ni varmt välkomna att kontakta oss för ytterligare information och för att boka en visning.
/ Carl
Ytor/Planlösning
Kontorslokaler.
Övrig information
Antal rum: 50
Ekonomi
Tillträde: Enligt överenskommelse
Hyresinformation: Kontakta hyresvärden
Utförande
Fastighetsbeteckning: Luxor 1
Byggår: 1973
Omgivning
Omgivning/natur: Lokalen är belägen med närhet till grönområden och promenadvägar vid sjön Vättern.
Parkeringsmöjligheter/garage: I direkt anslutning till lokalen finns det generöst med besöksparkeringar.