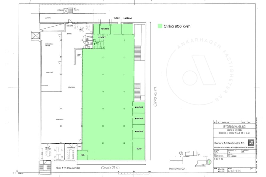
Flexibel yta i markplan med skyltläge mot riksväg 50. Till största del öppen planlösning, men även ett tretal kontor, konferensrum, pentry, WC och RWC. Ytorna nås via lastkaj eller välkomnande kund-entré. Samtliga ytor kan vidare anpassas för just er verksamhets unika behov.
Fler bilder och information om lokalen postas här inom kort. Vill ni veta mer om lokalen redan idag, tveka då inte att kontakta mig. / Carl
Ytor/Planlösning
öppen hall.
Övrig information
Antal rum: 6
Ekonomi
Tillträde: Enligt överenskommelse
Hyresinformation: Kontakta hyresvärden
Utförande
Fastighetsbeteckning: Luxor 1
Byggår: 1973
Omgivning
Omgivning/natur: Lokalen är belägen med närhet till grönområden och promenadvägar vid sjön Vättern.
Parkeringsmöjligheter/garage: I direkt anslutning till lokalen finns det generöst med besöksparkeringar.