Fastigheten är placerad i populära kvarteret Tobaksmonopolet. I området blandas häftiga industrifastigheter med grönområden och det finns gott om service samt närhet till kommunikationer.
Lokalen representerar mycket av den industriella och härliga karaktären som finns i området. Högt i tak, fantastiskt ljusinsläpp, effektiva ytor och en hög standard på lokalen.
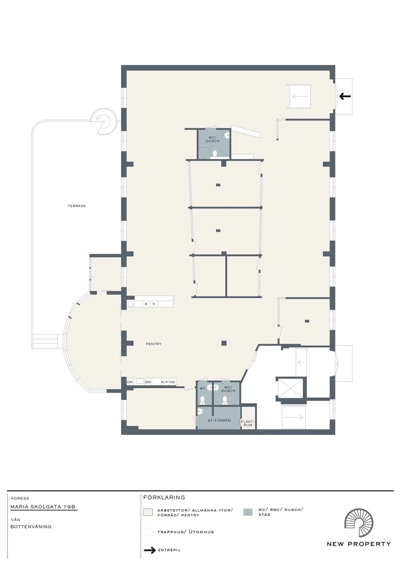
Från ingången, direkt från gatan, möts man av en härlig lounge och mottagningsyta. Stor öppen arbetsyta med fönster ut mot Maria Skolgata med plats för upp till ca 20-22 personer. Ett större konferensrum för upp till 8-10 personer, ett mindre mötesrum för 3-4 personer samt ytterligare ett arbetsrum för upp till 4 personer. Stort gemensamt pentry med en tillhörande glasveranda med direktutgång till 80 kvm terass i soldränkt läge. 3 wc totalt i lokalen varav 2 med dusch.
Här delar man lokalytan med Whispr Group som är förstahandshyresgäst och som själva sitter i lokalen. Det är en tydlig avgränsning mellan arbetsytorna som gör att det känns som en egen lokal. Entrén, pentryt och lounge delas med Whispr Group. Här hyr man ett nyckelfärdigt kontor som är fullt möblerat, media/it, m.m. - Allt på plats, bara att flytta in!
Fördelning av lokalyta:
Ca 150 kvm exklusiv yta för tillträdande hyresgäst med plats för runt 20-22 personer plus ett rum för 4 personer, ett stort konferensrum och ett mötesrum.
Ca 145 kvm gemensam yta med entré, lounge, pentry, toaletter och glasveranda med direktutgång till 80 kvm stor terrass.
Se ritning "fördelning av lokal" för förtydligande av lokalytan.
Lokalen hyrs ut med flexibel hyrestid och mot en kostnad om 90000 kronor/mån exkl. moms. Hyra inkluderar fastighetsskatt, värme/kyla, avfall, larm, möbler och media. Tillträdande hyresgäst och förstahandshyresgästen delar på löpande kontorskostnader såsom städ, el och internet, kaffe m.m. enligt separat ök.
Känns lokalen för liten? Det finns även möjlighet att ta över lokalen i sin helhet om 440kvm, se länk för mer info: https://newproperty.se/hyra/kontor/stockholm/sodermalm/maria-skolgata-79b/22365
Hör av dig så berättar vi mer!