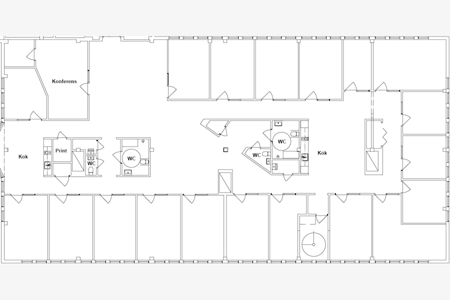
🚪 20 fina kontorsrum på tredje våningen – med hiss och generöst ljusinsläpp (13 - 25kvm) 🍽️ Pentryn med sittplatser, kyl/frys, diskmaskin och dusch/wc 🛋️ Väntutrymme och konferensrum – perfekt för både kunder och möten 🌬️ FTX-ventilation – för ett behagligt inomhusklimat 🎨 Gemensamma ytor – med trägolv och ljus miljö 🚗 Parkeringstillstånd för hyresgäster och p-skiva för besökare (Även laddplatser för hyresgäster)
I fastigheten samsas du med etablerade företag – ett nätverk som ger både trygghet och möjligheter till samarbeten.
Oavsett om du söker ett mindre rum eller ett större kontor är Cuben Business Center rätt plats för företag som vill växa med komfort och närhet till både stad och service.
📞 Hör gärna av dig för visning eller mer information – vi välkomnar dig varmt!
Ytor/Planlösning
Företag i närheten: Malmbergs, Talenom redovisning, Mekonomen
Parkeringsmöjligheter: P-tillstånd och P-skiva
Närservice: Lunch Restaurang 400m
Vägbeskrivning: Avfart Handen från Nynäsvägen. Kör av Nynäsvägen vid ICA Maxi
Kommunikationer: Buss
Kontakta Hegert & Jonsson Fastighets AB / CKP Fastigheter