Upptäck en unik möjlighet att etablera ditt företag i hjärtat av Lund! På Mårtenstorget 5, med utmärkta parkeringsmöjligheter både på torget och i närliggande parkeringshus, erbjuder vi en rymlig kontorslokal på tredje våningen med hiss.
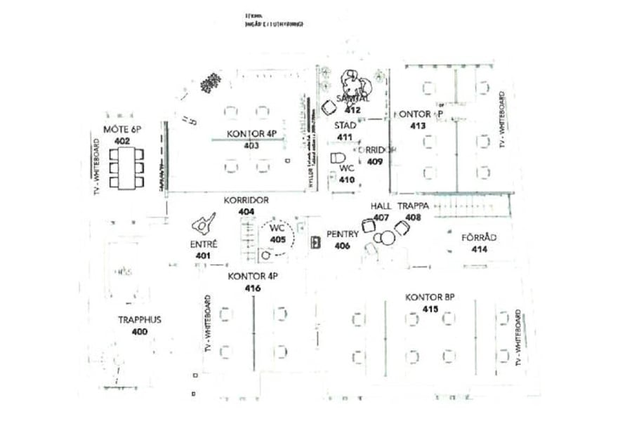
Lokalen består av flera större kontorsrum, vardera med plats för 4–6 personer, ett konferensrum för sex deltagare samt mindre rum som kan användas för privata samtal eller som enskilda kontor. Denna flexibla planlösning anpassar sig efter ditt företags behov och främjar en produktiv arbetsmiljö.
Med sitt centrala läge har du direkt närhet till allt som Lunds stadskärna har att erbjuda – butiker, restauranger, caféer samt bekvämligheter som Coop och Systembolaget. Detta ger både dina medarbetare och kunder enkel tillgång till service och nöjen.
Ta chansen att etablera ditt företag i denna expansiva och inspirerande miljö. Kontakta oss idag för mer information och för att boka en visning av lokalen.
Ytor/Planlösning
Rumsfördelad med möjlighet att anpassa.
Övrig information
Croisette Real Estate Partner har erhållit förmedlingsuppdrag avseende lokalen som beskrivs i detta informationshäfte. Informationen är till största del inhämtad från Fastighetsägaren och eller Hyresgästen. Croisette AB och dess dotterbolag (”Croisette”) ansvarar inte för riktigheten i informationen. All information som är av relevans skall kontrolleras av en eventuell hyresgäst och varken Fastighetsägaren, Hyresgästen eller Croisette kan hållas ansvarig vid felaktigheter i detta informationshäfte.
Ekonomi
Tillträde: Omgående
Utförande
Våningsplan: 3 av 3
Omgivning
Omgivning/natur: Idylliskt och vackert i anrika Lund.
Företag i närheten: Restaurang Ved, Systembolaget, Coop, Hemtex, Synsam, Pinchos, Waynes Coffee .