Ta chansen att etablera er i expansiva Trelleborg. Lokalerna på Mellanköpingevägen är flexibla och det finns tillgång till gott om utomhusytor.
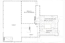
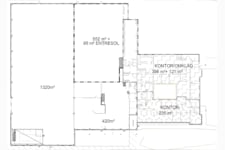
Kontor: 225 - 631 kvm Lager: 2 387 kvm
Flertalet stora markportar och högt i tak.: Takhöjd till balk: 6 m (7,30 mellan balkar). Travers finns tillgängligt (4,60m). ----------------------------------------------------------------------------------------------------------------------- English.
Take the oppertunity to establish your company in the growing city of Trelleborg. The premises is flexible and plenty of space outside. A couple of industrial sized doors and high ceilings. 7,3 m between the beams, 6 m to the beam and 4,6 to the traverse.
Ytor/Planlösning
Se planritning.
Övrig information
Croisette Real Estate Partner har erhållit förmedlingsuppdrag avseende lokalen som beskrivs i detta informationshäfte. Informationen är till största del inhämtad från Fastighetsägaren och eller Hyresgästen. Croisette AB och dess dotterbolag (”Croisette”) ansvarar inte för riktigheten i informationen. All information som är av relevans skall kontrolleras av en eventuell hyresgäst och varken Fastighetsägaren, Hyresgästen eller Croisette kan hållas ansvarig vid felaktigheter i detta informationshäfte.
Ekonomi
Tillträde: Efter överenskommelse.
Omgivning
Omgivning/natur: Lugnt och avsides men med närhet till city.
Företag i närheten: K E Palms Åkeri AB, Prestando AB, Metso Minerals AB