På Metallvägen 66 i Rosersberg finns det nu möjlighet att hyra en egen toppmodern lager/-fastighet. Byggnaden stod klar under 2024. I direkt anslutning till fastigheten finns ett grönområde med möjlighet till rekreation och avkopplande promenader. Närhet till Rosersbergs kombiterminal (Kombiterminal Stockholm Nord) för effektiv omlastning mellan väg och järnväg.
Bilagt finns ett prospekt med en mer ingående beskrivning.
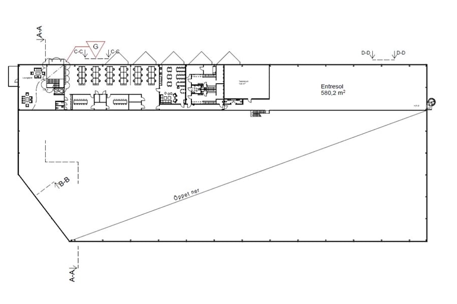
FASTIGHETEN
Egen fristående byggnad om totalt 6 678 kvm, varav 5 108 kvm lager, 712 kvm lagerentresol samt 849 kvm kontor. Entresolplanet innehåller kontor, personalutrymmen, omklädning, dusch, teknikutrymmen, förråd samt kök.
Inhägnad tomt om totalt 13 501 kvm: 59 parkeringsplatser, varav 17 laddplatser: 10,5 meter fri invändig takhöjd (4,5 m under entresol): 5 vädersäkrade lasthus: 6 lastportar: 1 markport: Golvbärighet 40 kN/kvm: Sprinklersystem: Elkraft om 1 000 kVA: Fjärrvärme: FTX-ventilation: Förberett för solceller: Fiberanslutning: Miljöklassificering enligt BREEAM Excellent
KOMMUNIKATIONER
200 m promenad till busshållplats Tenngatan som trafikeras av busslinje 538 samt 576. Ca 10 minuters restid till Rosersbergs station (pendeltåg).
OM ROSERSBERG
Rosersbergs verksamhetsområde är ett av de största logistikområdena i Storstockholmsområdet. Området är strategiskt beläget 30 kvm från centrala Stockholm och 10 km från Arlanda.
Rosersberg är ett väletablerat logistiknav och området inrymmer en rad välkända företag såsom bland andra PostNord, Ericsson, Sortera, SPEED Group, Tapwell, Bilprovningen, DHL, Åhléns, DSV, Optimera, Nokian, Dustin, Honeywell och Lidl.
Logistikparken inrymmer norra Stockholms enda kombiterminal. Rosersbergs kombiterminal är den nordligaste som går att nå från centrala Europa på ett dygn.
Bilagt finns ett prospekt med en mer ingående beskrivning.
Välkommen att kontakta Rikard Skoglund (070-754 33 13, rikard.skoglund@cushwake.com) för mer information!