Beskrivning
Möjlighet att påverka utformning från start – skräddarsy er nästa etablering i ett av södra Stockholms bästa exponeringslägen - Vega handelsområde.
På den sista tomten i Vega, Mjölnare Grips väg 10 planeras en modern och flexibel verksamhetsfastighet med direkt synlighet mot väg 73 (Nynäsvägen) och direkt access till på- och avfart.
Här kan ni hyra allt från 800 kvm i 2 plan till hela fastigheten om minst 2700 kvm - upp till 3600 kvm.
Fastigheten uppförs med modern arkitektur, stora glaspartier och representativa entréer – idealiskt för företag som vill etablera lager, industri, showroom, gym och kontor.
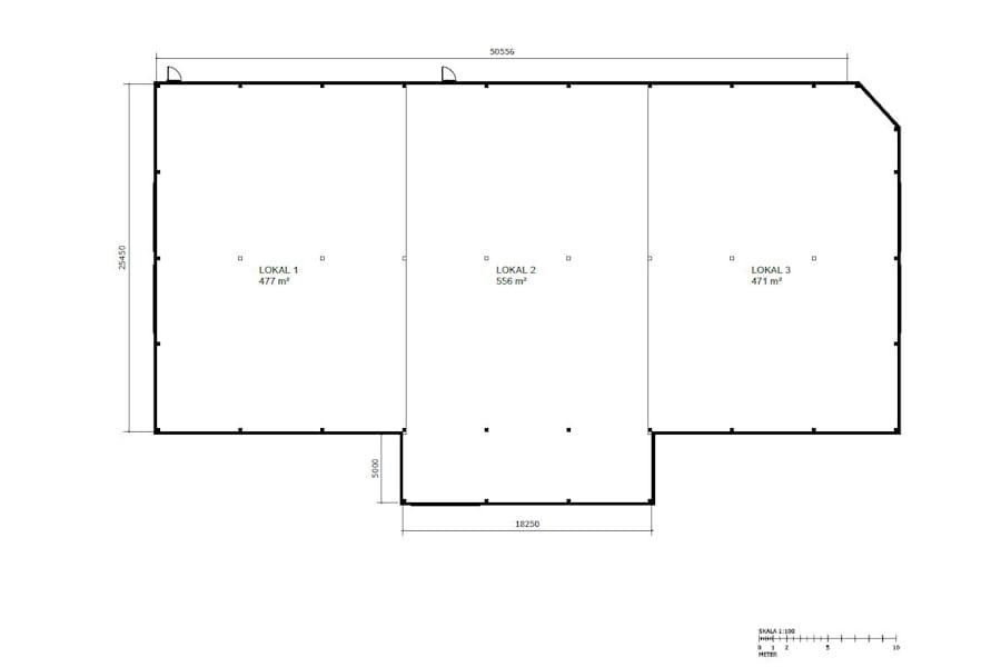
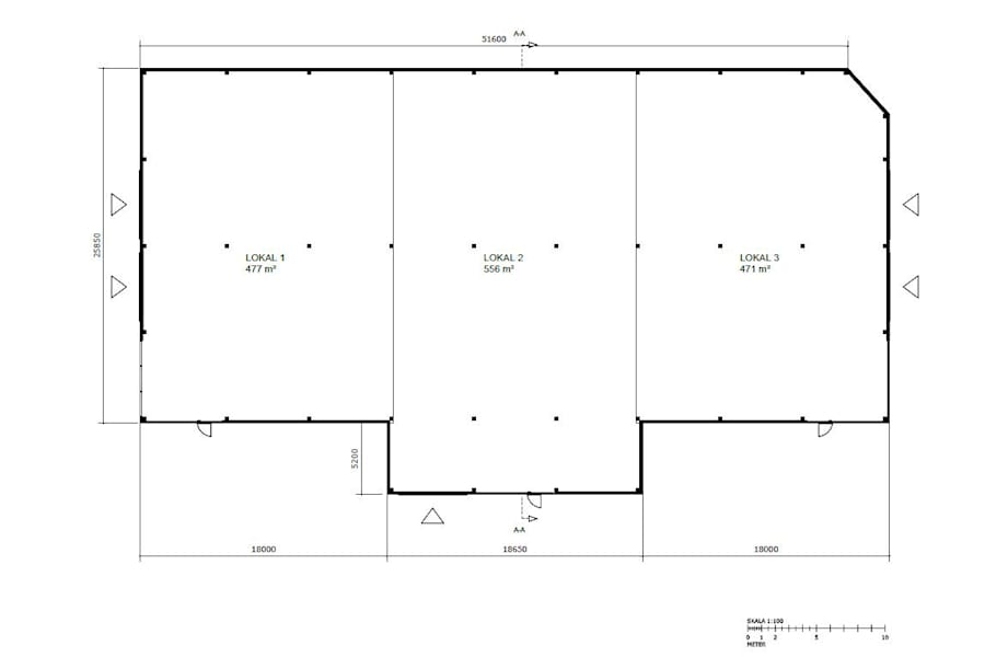
Planerad byggnation (LOA)
En möjlig utformning av projektet omfattar:
Tomtarea: ca 5 200 kvm
BYA: ca 1 800 kvm
LOA: ca 2 700 kvm (inkl. ca 50% plan 2)
Detta utgör en effektiv och kommersiellt optimal lösning med god balans mellan lager/produktion i markplan och kontor/showroom på övre plan.
Flexibilitet – byggs efter hyresgästens behov
Då byggnationen ännu inte påbörjats finns stora möjligheter att anpassa fastigheten:
Upp till ca 3 600 kvm i två plan
Alternativt ca 1 800 kvm höglager med upp till ca 9 m takhöjd
Möjlighet till uppdelning för flera hyresgäster
Minsta yta från ca 800 kvm (i två plan)
Övre plan kan anpassas med bärighet för gym, lager, showroom eller kontor
Detta gör projektet attraktivt för både enskilda större aktörer och flera hyresgäster.
Logistik & funktion
Effektiv angöring och varuflöden
Möjlighet till portar och lastning efter behov
Ca 20 parkeringsplatser inom fastigheten
Möjlighet till laddplatser
Flexibel användning av markytor
Notera att baksidan av fastigheten (mot bostäder) lämpar sig mindre för uppställning, men kan med fördel nyttjas för parkering, exempelvis för hyresgäster i plan 2.
Toppläge med maximal exponering
Direkt synlighet från väg 73 (Nynäsvägen)
Direkt access till På-/avfart
Etablerat handelsområde med starka grannar: Mio, Dahls, Flugger Färg, Core Gym, Carglass, Shurgard Hemköp m.fl.
Snabb access till Stockholm, Nynäshamn och regionen
Ett optimalt läge för verksamheter som vill kombinera logistik, tillgänglighet och exponering.
Användningsområden
Lager & logistik
Lätt industri / produktion
Showroom / butik (sällanköp)
Kontor i kombination med verksamhet
Tidplan
Planerad färdigställande: Q2 2027
LOCUS ADVICE
Locus Advice är ett fastighetskonsultbolag med fokus på kommersiella fastigheter och lokaler.
Vi arbetar med
Genom etablerade samarbeten med både stora och små fastighetsägare har vi tillgång till ett stort utbud av lokaler utöver vad vi kan marknadsföra i vår egen regi. Via dessa samarbeten kan vi med stor sannolikhet hjälpa er hitta den lokal ni söker efter.