Ta chansen att etablera er verksamhet i centrala Malmö med närhet till Triangelns Tågstation och Möllevångstorget. Lokalen är perfekt för kontorsverksamhet samt LSS -boende eller kreativ verksamhet.
Med öppna ytor tillsammans med kontorsrum får man en flexibel lösning för det snabbfotade bolaget. Med en mysig innergård får man en trevlig arbetsmiljö utanför sin arbetsplats.
Placera ert företag med närhet till allt Malmö erbjuder. Med gångavstånd till både Gustav Adolfs Torg och Södervärn.
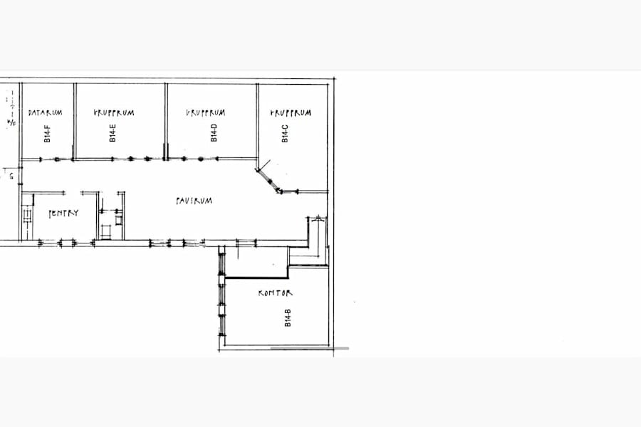
Ytor/Planlösning
Kontorslokal fördelad på två plan.
Övrig information
Croisette Real Estate Partner har erhållit förmedlingsuppdrag avseende lokalen som beskrivs i detta informationshäfte. Informationen är till största del inhämtad från Fastighetsägaren och eller Hyresgästen. Croisette AB och dess dotterbolag (”Croisette”) ansvarar inte för riktigheten i informationen. All information som är av relevans skall kontrolleras av en eventuell hyresgäst och varken Fastighetsägaren, Hyresgästen eller Croisette kan hållas ansvarig vid felaktigheter i detta informationshäfte.
Ekonomi
Tillträde: Efter överenskommelse
Omgivning
Omgivning/natur: Historiska gator och blandad bebyggelse
Företag i närheten: Köld, Grand Malmö, Soi29, Mormors Bageri med flera