Nu finns möjlighet att hyra en mycket trevlig, fräsch och flexibel lokal med utmärkt skyltläge i en välbesökt fastighet som rymmer en attraktiv mix av butiker och hälsoinriktade verksamheter. Lokalen har ett mycket bra läge direkt innanför entrén.
I fastigheten finns redan etablerade aktörer såsom vårdcentral och tandläkare vilket skapar ett naturligt kundflöde och gör lokalen särskilt lämpad för butiksverksamhet.
Lokalen ligger i markplan med stora fönster mot Viksjöleden, vilket ger fantastisk synlighet och gör den lättillgänglig för både kunder och personal.
Läget är lättillgängligt med ett stort antal kundparkeringar direkt utanför entrén.
Gångsvstånd till Barkarby pendeltågsstation samt flera busslinjer som trafikerar området.
Flexibel planlösning som kan anpassas efter verksamhetens behov
Vänligen kontakta oss för mer information!
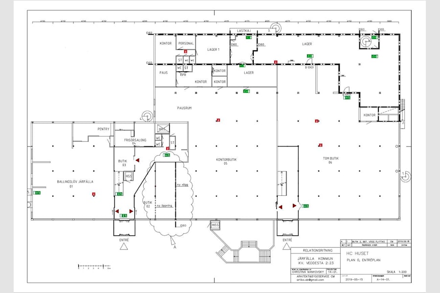
Planlösning: Fin öppen planlösning med personalytor längst bak i lokalen. Här finns även utgång till lastkaj.
Omgivning
Företag i närheten: Willys, Biltema, Matvärlden, Beijer m.fl.
Parkeringsmöjligheter/garage: Gott om parkeringsplatser
Närservice: Matbutiker, bensinstation, apotek. På kort avstånd nås Barkarby handelsplats med dess utbud tex ICA Maxi, McDonalds, IKEA, Mio mm.
Skyltläge: Skyltläge ut mot Viksjöleden