Starta upp din verksamhet mitt i centrala Falkenberg!
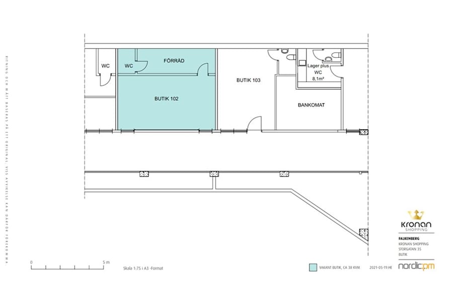
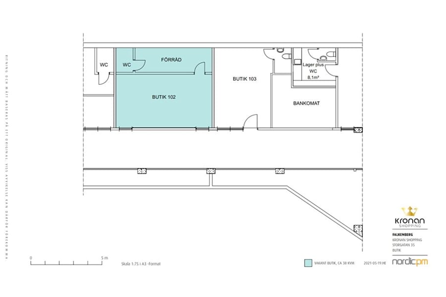
Här finns nu en ledig butikslokal på 39 kvm med stora glaspartier och skyltfönster mot galleriagången i mitten av Kronan shopping.
Ytan rymmer WC, förråd och butik/försäljningsyta. Ytskikten består idag av jalusi, målade väggar, parkett samt betonggolv och grundbelysning.
Varmt välkommen att lämna intresseanmälan eller ringa ansvarig uthyrare för visning!
Omgivning
Falkenberg har idag strax över 45 000 invånare och är stad med tillväxt. Senaste 10 åren har Falkberg haft en stadig tillväxt och ökat med knappt 10%.
Busslinje 11 stannar 100 m utanför Kronans huvudentré. Falkenberg Bussterminal når du på 4 min promenad. Till bussterminalen ankommer busslinje 1, 553 och 555 från Falkenbergs tågstation.
Tåglinje 029 tar dig till och från Halmstad C och Göteborg.
Fastighet
Kronan Shopping är en av de absoluta mittpunkterna avseende handel i Falkenberg. Centrumet har 0.6Mn besökare årligen, 190 parkeringsplatser i direkt anslutning till centrumet (ovanpå). Idag finns det totalt 10 hyresgäster med mycket starka varumärken så som KappAhl, Gina Tricot, Hemtex, Kicks etc.