På det övre planet finns från och med 1: a april 2026 lokaler lämpliga för en rad olika typer av verksamheter. Lokalen används idag för utbildning, men lämpar sig lika väl för kontor, mötesverksamhet eller liknande. Här finns kontorsrum, samlingsytor, pentry och mer – en praktisk och trivsam miljö för det moderna arbetslivet.
Tror ni att det här skulle kunna passa er? Tveka inte att höra av er! Jag berättar gärna mer om lokalen och hjälper till att boka in en visning.
Ni når mig enkelt via kontaktuppgifterna här på sidan. / Andreas
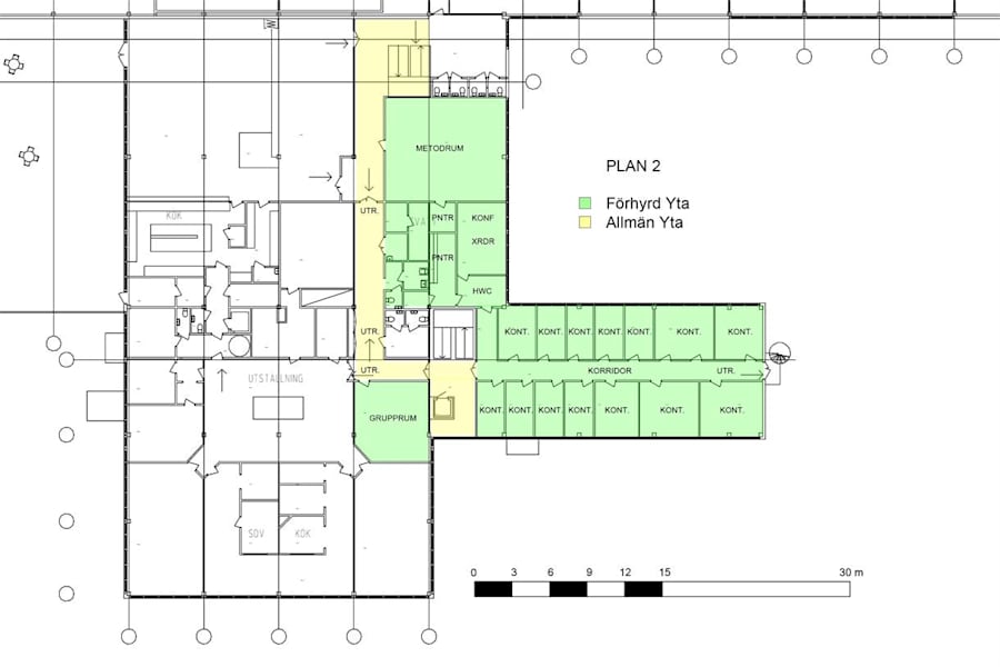
Ytor/Planlösning
Planlösning med mått finns i bildspelet såväl som för nedladdning i PDF format här i annonsen.
Ekonomi
Tillträde: Enligt överenskommelse. Enligt överenskommelse
Prisinformation: Enligt överenskommelse
Hyresinformation: Enligt överenskommelse
Utförande
Fastighetsbeteckning: Östanvinden 4
Byggår: 1974
Våningsplan: 2
Omgivning
Omgivning/natur: Örsholmen är ett av Karlstads största och mest dynamiska industriområden, känt för sin blandade industriella verksamhet och goda infrastruktur. Här samsas företag från en rad olika branscher, vilket skapar en livlig och mångsidig företagsmiljö.
Området har ett strategiskt läge med direkt anslutning till E18 och övriga större vägnät, vilket ger snabba och smidiga transportmöjligheter både inom Karlstad och till resten av länet. Karlstads centrum nås på endast 10 minuter med bil och området är även välförbundet via stadsbussnätet, vilket gör det lättillgängligt för både anställda och besökare.
Företag i närheten: Närliggande verksamheter och aktörer är bland annat Axfood Snabbgross, Instabox, Värmlands Motor, Mekonomen, Schenker, LBC Frakt och Handelsboden.
Parkeringsmöjligheter/garage: Mycket gott om parkeringsplatser
Skyltläge: Gott om möjligheter för din verksamhet att skylta i anslutning till lokalen
Vägbeskrivning: Lokalen är belägen på expansiva Örsholmens industriområde i Karlstad, endast 10 minuter med bil från centrala Karlstad och 5 minuter med bil från E18