Nu har du chansen att etablera din verksamhet i Kristianstads mest centrala handelsläge – Galleria Boulevard. Lokalen är rymlig, flexibel och perfekt för handel, service eller upplevelsekoncept.
Galleria Boulevard ligger mitt i Kristianstads stadskärna, med direkt närhet till shopping, restauranger och kultur. Området är under stark utveckling och kommer att bli en ännu mer attraktiv destination för både invånare och besökare.
Detta är ett läge med stark tillväxt och framtidssäkring – perfekt för dig som vill vara en del av Kristianstads nya centrum.
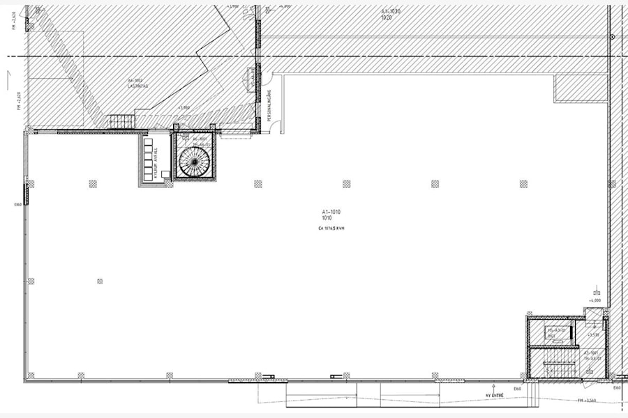
Ytor/Planlösning
Butikslokal med egen ingång i Galleria Boulevard.
Övrig information
Croisette Real Estate Partner har erhållit förmedlingsuppdrag avseende lokalen som beskrivs i detta informationshäfte. Informationen är till största del inhämtad från Fastighetsägaren och eller Hyresgästen. Croisette AB och dess dotterbolag (”Croisette”) ansvarar inte för riktigheten i informationen. All information som är av relevans skall kontrolleras av en eventuell hyresgäst och varken Fastighetsägaren, Hyresgästen eller Croisette kan hållas ansvarig vid felaktigheter i detta informationshäfte.
Ekonomi
Tillträde: Efter överenskommelse
Utförande
Våningsplan: 1
Omgivning
Omgivning/natur: Närhet till grönska och natur.
Företag i närheten: Clas Ohlson, Coop, Stadium, Systembolaget, Normal, Apotek, Kicks, Rituals, Gina Tricot, Systrarna Grene med flera.
Parkeringsmöjligheter/garage: Finns i fastigheten.