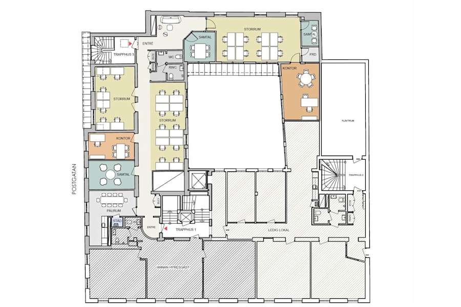
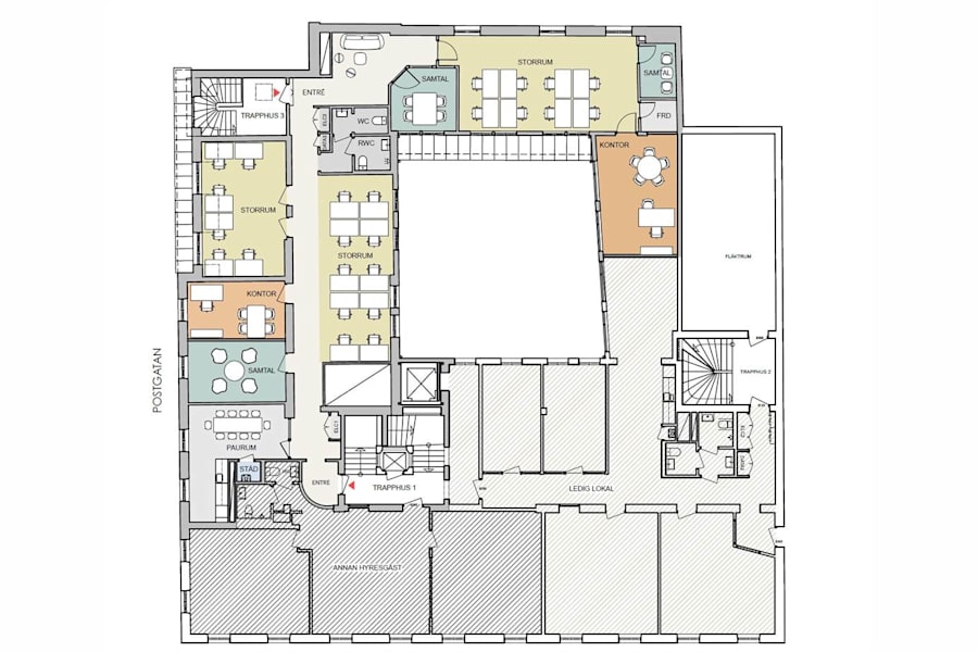
Nu finns möjligheten att hyra kontorslokaler på bästa läget mitt i centrum med flexibla ytor om 181 kvm och 261 kvm. Lokalerna kan hyras separat eller kombineras till en sammanhängande yta om totalt 442 kvm.
Båda lokalerna erbjuder en blandning av öppna ytor, enskilda kontor, mötesrum och gemensamma utrymmen med pentry. Med högt i tak och stora fönster i flera väderstreck får ni en ljus och trivsam arbetsmiljö.
Lokalerna kan anpassas efter era specifika behov och önskemål, vilket gör dem idealiska för företag som söker flexibla lösningar.
Med ett förstklassigt läge precis intill Nordstan har ni nära till all tänkbar service och utmärkta kommunikationer.
Cykelrum finns i fastigheten bredvid.
Välkommen till oss på Croisette för ytterligare information och bokning av visning!
Övrig information
Croisette Real Estate Partner har erhållit förmedlingsuppdrag avseende lokalen som beskrivs i detta informationshäfte. Informationen är till största del inhämtad från Fastighetsägaren och eller Hyresgästen. Croisette AB och dess dotterbolag (”Croisette”) ansvarar inte för riktigheten i informationen. All information som är av relevans skall kontrolleras av en eventuell hyresgäst och varken Fastighetsägaren, Hyresgästen eller Croisette kan hållas ansvarig vid felaktigheter i detta informationshäfte.
Ekonomi
Tillträde: Enligt överenskommelse
Omgivning
Omgivning/natur: Här sitter ni i stadens puls alldeles intill Göteborgs handelsgator.
Företag i närheten: Nordstan erbjuder ett stort utbud av alla olika typer av företag.