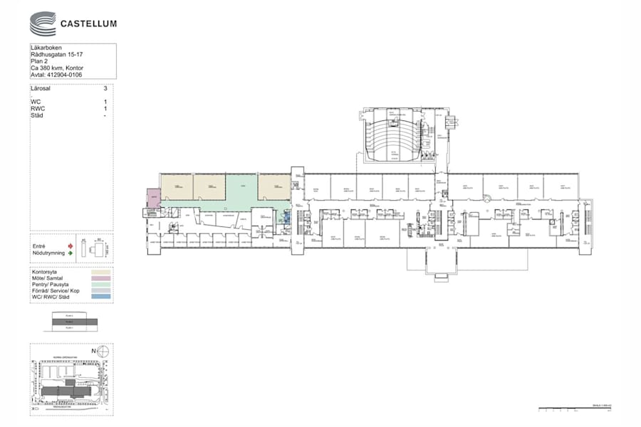
Kontor/ utbildningslokal 1 trappa upp i fastigheten. Lokalen är i första hand byggd för utbildning men kan även fungera som kontorslokal med öppen planlösning. Egen parkering finns i anslutning till fastigheten. Tillgång till gemensamt omkl.rum med tillhörande bastu. Byggnaden ligger inom 1 minuts avstånd till centrala Östersund med tillgång till butiker och restauranger.
Våningsplan: 2
Omgivning
Omgivning/natur: Fastigheten ligger i ett centralt men avskilt läge. Hyresgäster är blan annat CGI, Skanska AB, Ramböll AB, Lernia AB samt Hellström & Hjelm Revision AB.
Närservice: I huset finns en lunchrestaurang. Fastigheten är belägen två kvarter från Östersunds gågata med all tänkbar service.