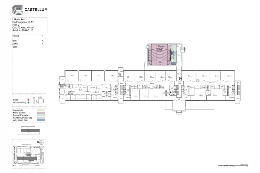
Aula byggd ursprungligen för Högskolan, utformad som en gradängsal med utrymme för 150 personer sittande. WC finns tillgänglig i direkt anslutning till lokalen.
Våningsplan: 2
Omgivning
Omgivning/natur: Fastigheten ligger i ett centralt men avskilt läge. Hyresgäster är blan annat CGI, Skanska AB, Ramböll AB, Lernia AB samt Hellström & Hjelm Revision AB.
Närservice: I huset finns en lunchrestaurang. Fastigheten är belägen två kvarter från Östersunds gågata med all tänkbar service.