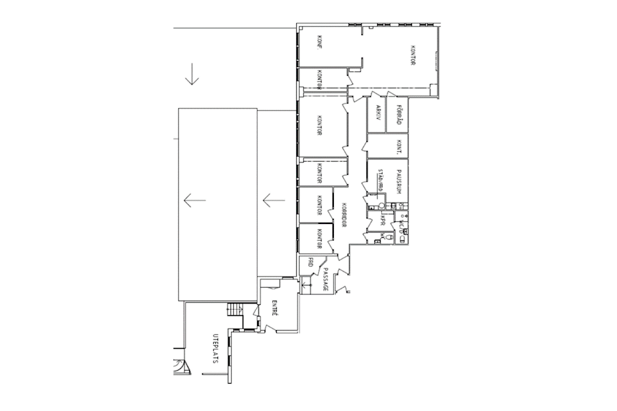
Kontoret är idag rumsindelat med bland annat 6 kontorsrum, 2 konferensrum, pentry, 2 WC varav en med dusch. Lokalen kan även anpassas till en mer öppen planlösning om behovet finns. Bredband om 2000 mbit/s finns indraget till fastigheten. För nyttjande av bredbandet tillkommer en kostnad.
En gemensam parkering finns för fastighetens hyresgäster.
Ytor/Planlösning
Bra läge i Tyresö företagsområde 3 min från Tyresö centrum.