Välkommen till Räfserydsvägen 24 mitt i bostadsområdet Öresjö Ängar!
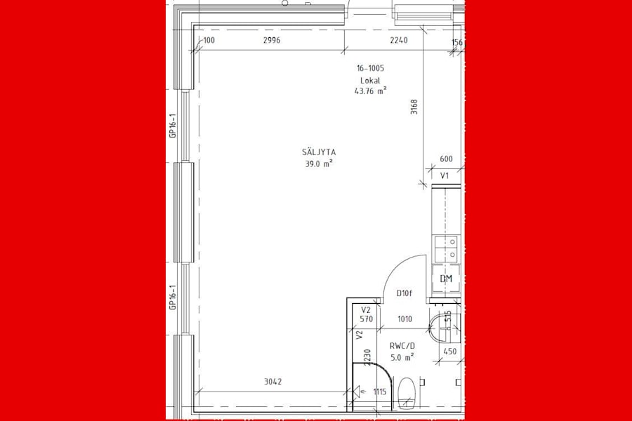
Här finns en nybyggd lokal i markplan om 44 kvm, som kan anpassas efter nästa hyresgästs önskemål och behov. Det finns även möjlighet att hyra till ett extrautrymme om 29 kvm genom lokalen intill.
Lokalen är perfekt för servicebutik eller liknande. I det nybyggda bostadsområdet Öresjö Ängar efterfrågas service av olika slag och lokalen kan därför anpassas tillsammans med nästa hyresgästs verksamhet!
Lokalen har ett mycket bra skyltläge. Utanför entrén finns även plats för cafébord.
I bostadsområdet finns drygt 600 nybyggda lägenheter och lokalen är belägen på markplan, invid torget.
Husen i området ger en varm och välkomnande känsla som skapar en miljö att trivas i!
Området Öresjö Ängar är beläget nära naturen och den vackra Öresjö, bara 10 minuter från Borås centrum!
Öresjö Ängar är en idealisk plats för boende som söker ett modernt, bekvämt och naturnära område med alla de faciliteter som behövs för en hög livskvalitet.
Just den här lokalen är inte lämplig för restaurang, men det finns andra lediga lokaler i området som passar för det, så hör gärna av dig.
Välkommen till oss på Croisette för ytterligare information och bokning av visning!
Ytor/Planlösning
Öppen planlösning.
Övrig information
Croisette Real Estate Partner har erhållit förmedlingsuppdrag avseende lokalen som beskrivs i detta informationshäfte. Informationen är till största del inhämtad från Fastighetsägaren och eller Hyresgästen. Croisette AB och dess dotterbolag (”Croisette”) ansvarar inte för riktigheten i informationen. All information som är av relevans skall kontrolleras av en eventuell hyresgäst och varken Fastighetsägaren, Hyresgästen eller Croisette kan hållas ansvarig vid felaktigheter i detta informationshäfte.
Miljöcertifiering: Miljöbyggnad
Ekonomi
Tillträde: Q1 2026
Omgivning
Omgivning/natur: Lokalen i Öresjö Ängar är belägen vid den vackra Öresjö och erbjuder en harmonisk miljö där boende kan njuta av naturen året om.
Parkeringsmöjligheter/garage: Gott om parkeringsplatser i området.
Skyltläge: Mycket bra skyltläge genom stora skyltfönster